EasyManua.ls Logo

Panasonic CS-Z20TKR

Panasonic CS-Z20TKR
207 pages
To Next Page IconTo Next Page
To Next Page IconTo Next Page
To Previous Page IconTo Previous Page
To Previous Page IconTo Previous Page
Loading...
31
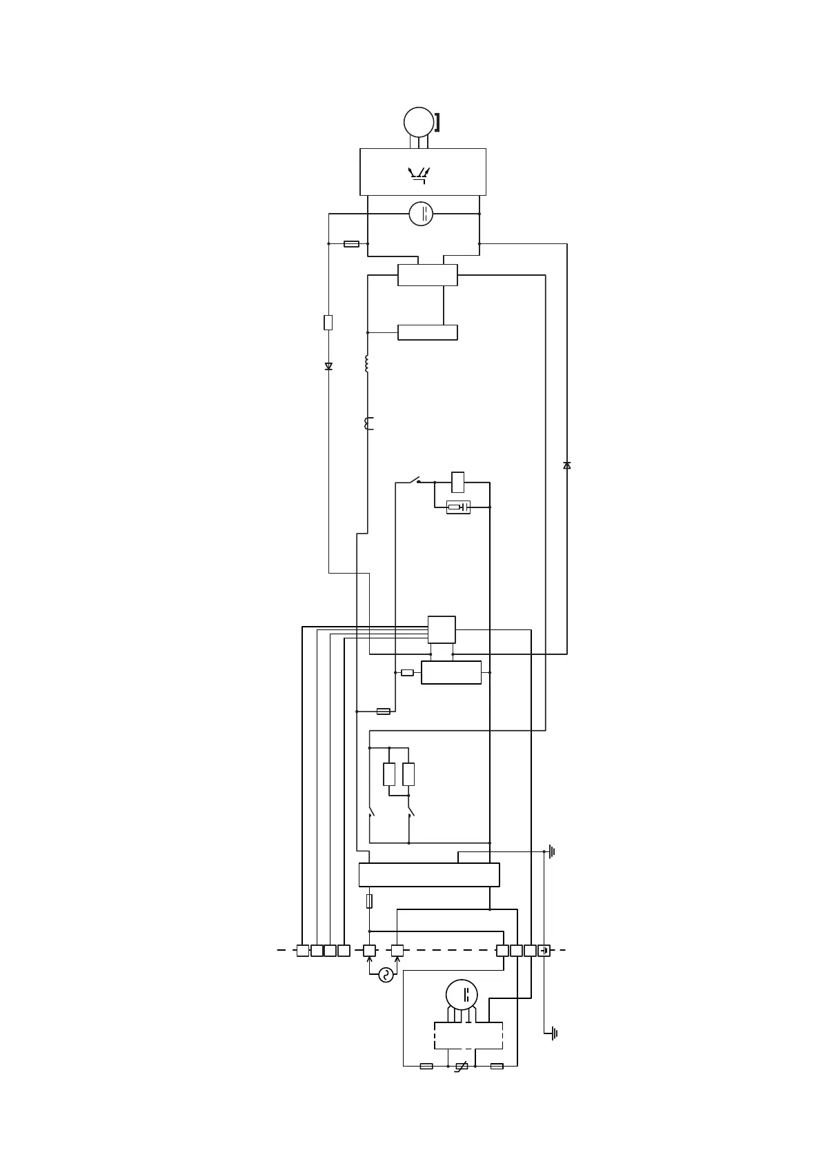
8.2 CU-Z80TKR
M
SC
SC
M
1
2
3
c
L
N
2
1
3
NOISE FILTER
PFC CIRCUIT
RECTIFCATION
CIRCUIT
RECTIFCATION
CIRCUIT
FUSE301TEMP. FUSE
FUSE3
FUSE2
4-WAYS VALVE
CT400
REACTOR
NTC
FUSE1
U
V
W
P
N
TH2
DB3
DB2
CR3
RY-HOT
DRM
U
(OUTDOOR UNIT)
(INDOOR UNIT)
RY-PWR2
RY-AC
PTC1
PTC2
NTC
TH1
MS
3 ~
SINGLE PHASE
POWER SUPPLY
AC230-240V
50 Hz

Table of Contents

Related product manuals