EasyManua.ls Logo

Panasonic CU-2E18NBU - Block Diagram

Panasonic CU-2E18NBU
57 pages
Print Icon
To Next Page IconTo Next Page
To Next Page IconTo Next Page
To Previous Page IconTo Previous Page
To Previous Page IconTo Previous Page
Loading...
10
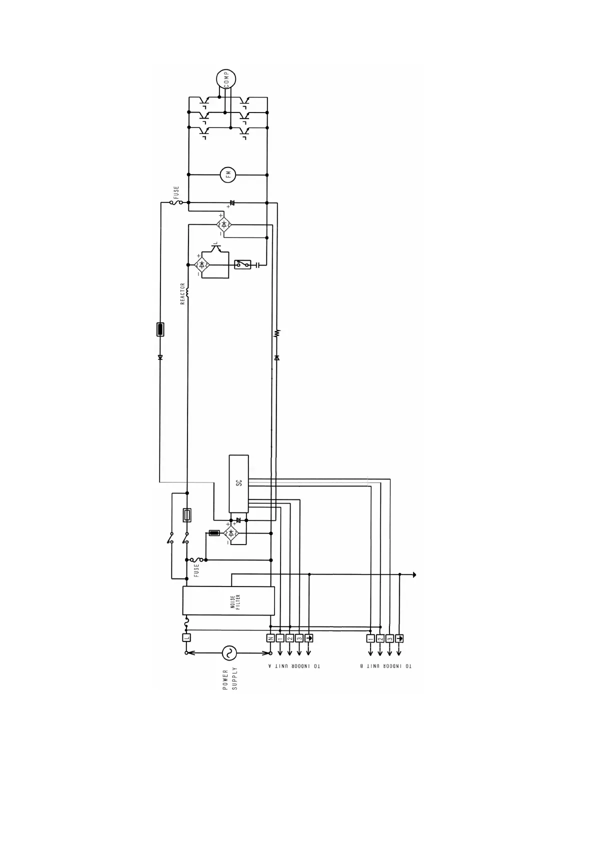
5. Block Diagram

Table of Contents

Other manuals for Panasonic CU-2E18NBU

Related product manuals