EasyManua.ls Logo

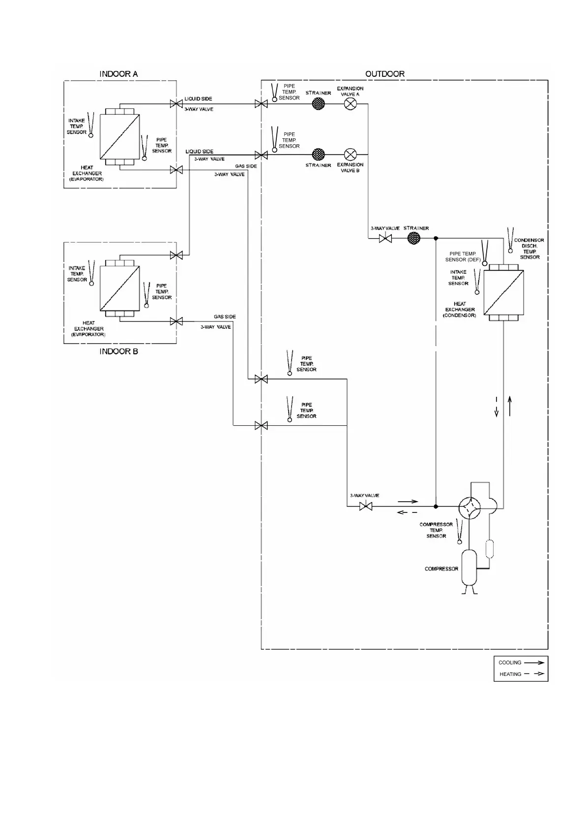
Panasonic CU-2E18NBU - Refrigeration Cycle Diagram

Panasonic CU-2E18NBU
57 pages
Print Icon
To Next Page IconTo Next Page
To Next Page IconTo Next Page
To Previous Page IconTo Previous Page
To Previous Page IconTo Previous Page
Loading...
9
4. Refrigeration Cycle Diagram

Table of Contents

Other manuals for Panasonic CU-2E18NBU

Related product manuals