EasyManua.ls Logo

Panasonic CU-2V18BKP5G - Page 85

Panasonic CU-2V18BKP5G
95 pages
Print Icon
To Next Page IconTo Next Page
To Next Page IconTo Next Page
To Previous Page IconTo Previous Page
To Previous Page IconTo Previous Page
Loading...
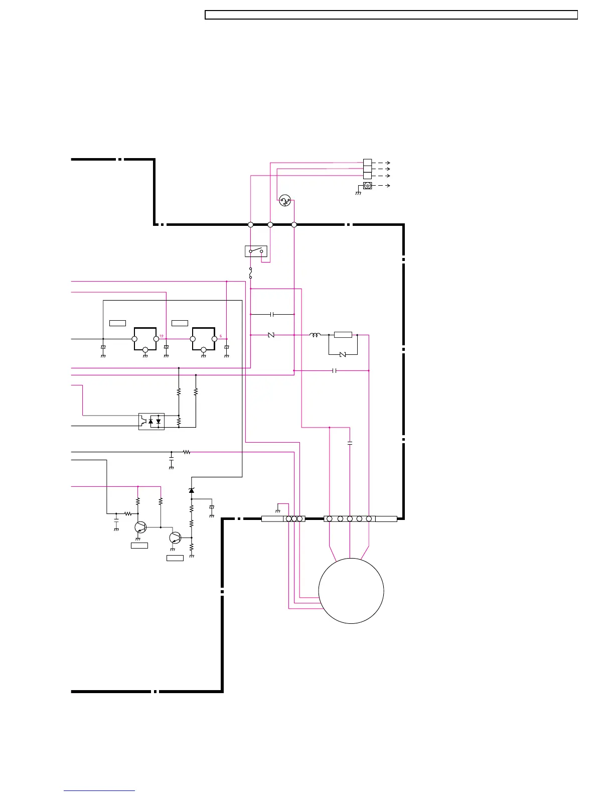
IC03
G
I
16V
100µ
C11
+
5V12VI
G
IC04
C17
3300µ
35V
(NHG)
+
+
C14
470µ
25V
1k
R36
MOTOR
FAN
CN-FM5431
32CN-FB1 1
(PH-3)
RY-PWR
250V
2A
AC
THERMAL
FUSE
102°C
TO
OUTDOOR
UNIT
(WHT)
511U
ZNR01
REGULATOR REGULATOR
0.1µ
C12
400V
1.5µ
C-FM
0.047µ
C03
SSR01
511U
ZNR03
125µH
L01
0.47µ
C19
510
R48
39k/2W
R47
39k/2W
R57
3
41
2
PC01
0.1µ
C18
c
e
b
R50
100k
R49
1k
R51
10k
c
e
b
6.2k
R54
10k
R53
6.2k
R52
ZD1
7.5EL1
Q05
Q06
50V
10µ
C21
+
GENERATION
RESET SIGNAL
GENERATION
RESET SIGNAL
2
FUSE
O O
BR
BL
W
1
2
3
SCHEMATIC DIAGRAM 3/7
85
CS-V9BKPG CU-2V14BKP5G / CS-V9BKPG CU-2V18BKP5G / CS-V9BKP G CU-3V20BKP5G / CS-V7BKP G CU-2V19BKP5G / CS-V12BKPG

Related product manuals