EasyManua.ls Logo

Panasonic CU-A125KE - 7 Wiring Diagram; Electrical Schematics and Resistance Values

Panasonic CU-A125KE
98 pages
Print Icon
To Next Page IconTo Next Page
To Next Page IconTo Next Page
To Previous Page IconTo Previous Page
To Previous Page IconTo Previous Page
Loading...
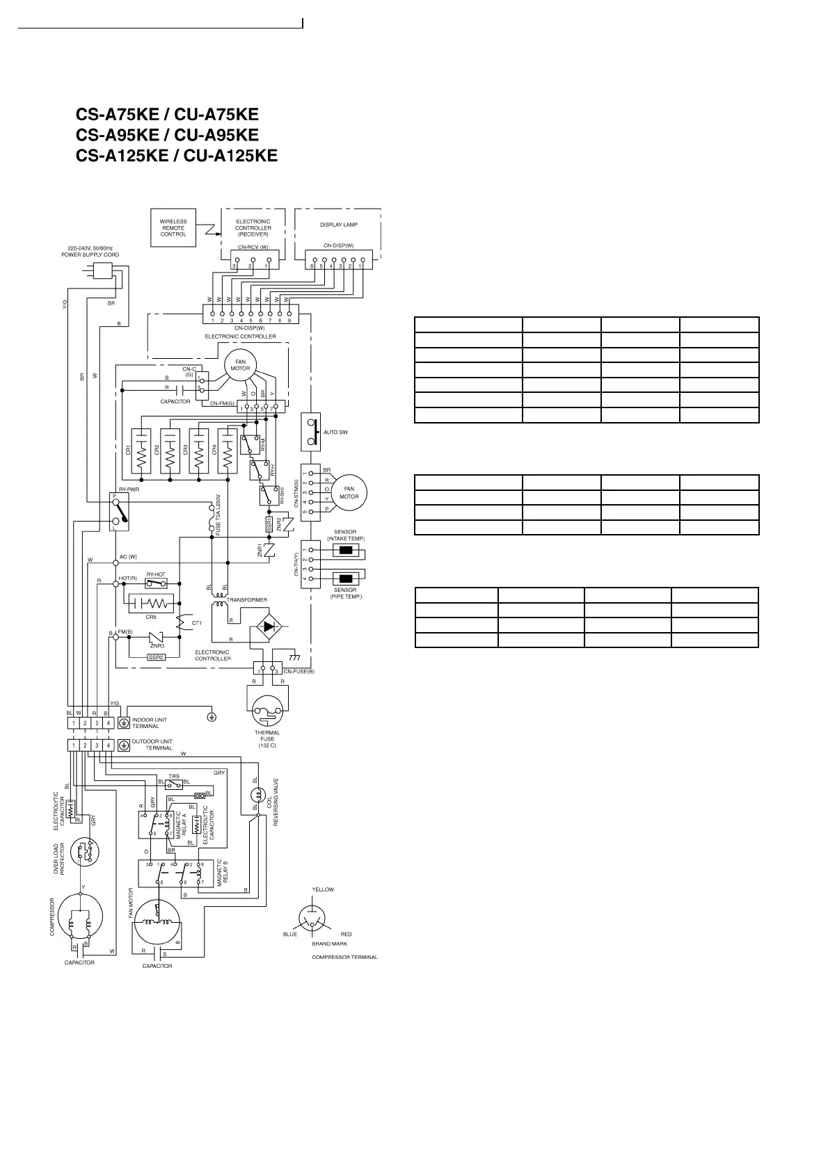
REMARKS
B : BLUE
BR : BROWN
BL : BLACK
W : WHITE
R : RED
O : ORANGE
P : PINK
Y/G : YELLOW/GREEN
Resistance of Indoor Fan Motor Windings
MODEL CS-A75KE CS-A95KE CS-A125KE
CONNECTION CWA921033 CWA921032 CWA921031
YELLOW-BLUE 707.1 451.2 450.7
YELLOW-BROWN 71.1 86.7 68.2
BROWN-ORANGE 64.7 98.4 56.7
ORANGE-WHITE 15.7 51.5 56.9
WHITE-RED 116.2 240.8 102.0
Resistance of Outdoor Fan Motor Windings
MODEL CU-A75KE CU-A95KE CU-A125KE
CONNECTION CWA95245
CWA95381
BLUE-YELLOW 260.5
174.5
YELLOW-RED 446.0
331.0
Resistance of Compressor Windings
MODEL CU-A75KE CU-A95KE CU-A125KE
CONNECTION 2RS127D3CA04 2PS174D3AA02 2KS224D5CA02
C-R 4.023 2.796 2.211
C-S 8.803 5.432 2.924
7 Wiring Diagram
16
S-A75KE CU-A75KE / CS-A95KE CU-A95KE / CS-A125KE CU-A125KE

Table of Contents

Related product manuals