EasyManua.ls Logo

Panasonic CU-A9HKD - Quiet Operation

Panasonic CU-A9HKD
78 pages
Print Icon
To Next Page IconTo Next Page
To Next Page IconTo Next Page
To Previous Page IconTo Previous Page
To Previous Page IconTo Previous Page
Loading...
39
The Fan Speed will shift as shown below:
Vertical Airflow Direction:-
- In “Manual” setting, the vane will automatically shift down 5° lower than previous setting.
- In “Auto” setting, the vane will automatically shift between upper and lower limit depending on the intake air temperature as
Heating Mode, Airflow Direction Auto-Control. However the upper and lower limit will be shifted 5° downward.
Powerful operation stops when:-
- Powerful operation has operate for 15 minutes.
- Powerful button is pressed again.
- Quiet button is pressed.
- Stopped by OFF/ON operation button.
- Timer OFF activates.
- Operation mode is changed.
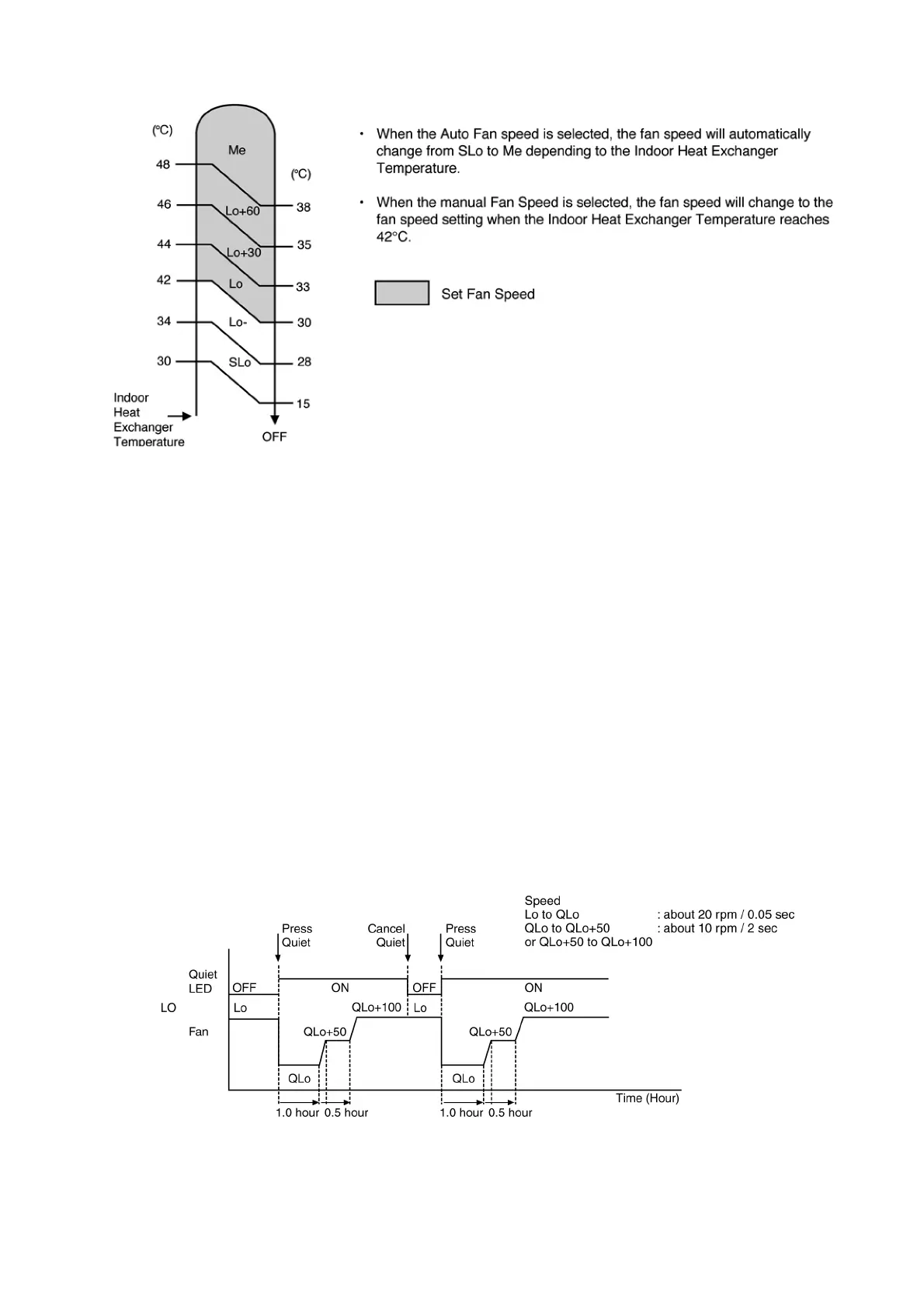
12.10. Quiet Operation
(For Cooling Operation or cooling region of Soft Dry Operation)
To provide quiet cooling operation condition compare to normal operation.
Once the Quiet Mode is set at the remote control, the Quiet Mode LED illuminated. The sound level will reduce around 2 dB(A)
for Lo fan speed or 3 dB(A) for Hi/Me fan speed against the present operation sound level.
Dew formation become severe at Quiet Lo cool, therefore Quiet Lo cool is operated only 1hr 30 min (1hr QLo, 30 min QLo + 50
rpm). After that, it goes back to Lo cool (However Quiet LED remains on).
Manual Airflow Direction:-
- RPM control during Lo cool

Table of Contents

Other manuals for Panasonic CU-A9HKD

Related product manuals