EasyManua.ls Logo

Panasonic CU-C181KE - Wiring Diagram

Panasonic CU-C181KE
45 pages
Print Icon
To Next Page IconTo Next Page
To Next Page IconTo Next Page
To Previous Page IconTo Previous Page
To Previous Page IconTo Previous Page
Loading...
– 12 –
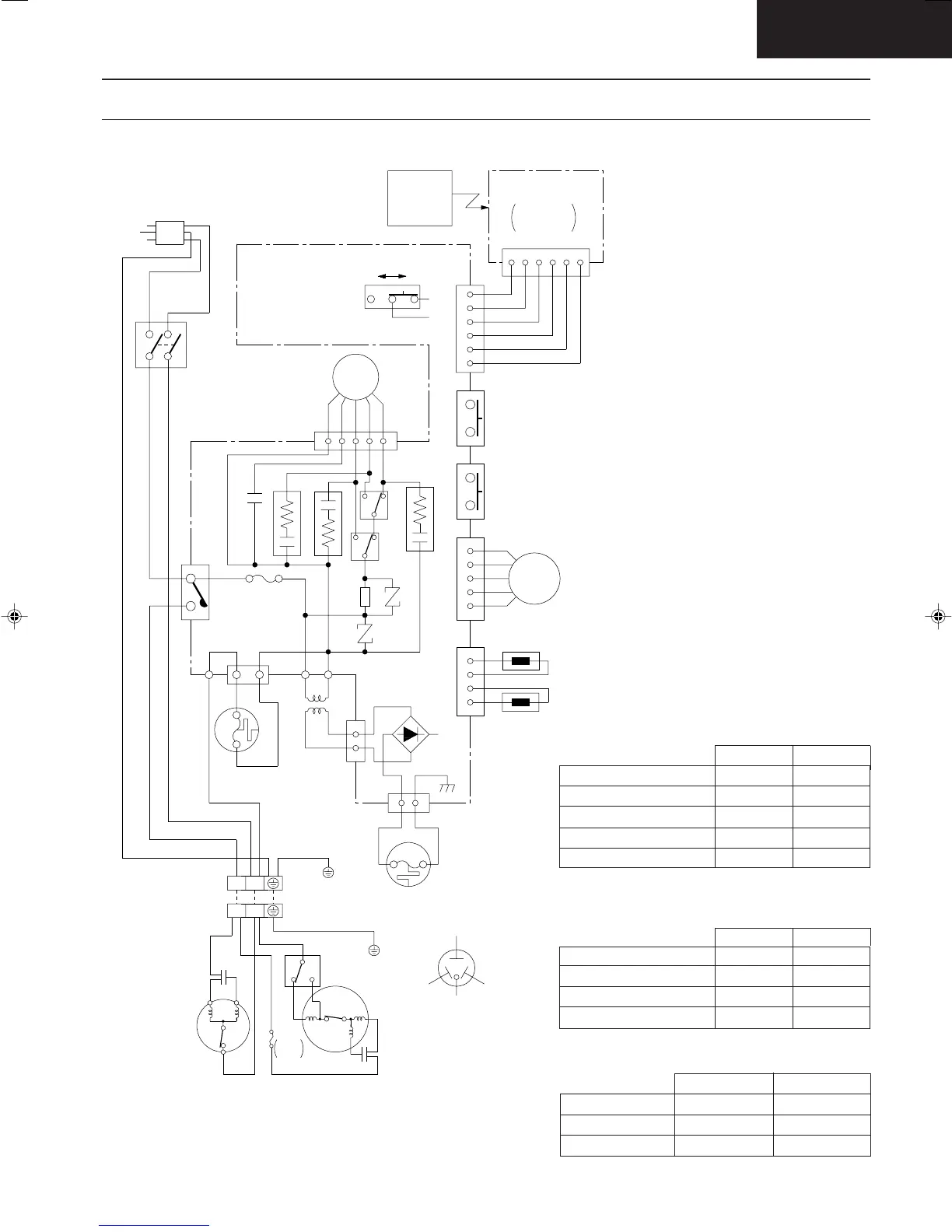
MAC9512086C2
CS-C181KE
21
12
TERMINAL
INDOOR UNIT
TERMINAL
OUTDOOR UNIT
CN-DISP(WHT)
MAIN SW
MOTOR
CN-STM(GRN) CN-TH(YEL)
123454321
(AIR TEMP.)
SENSOR
(YEL)
REDBLUE
COMPRESSOR TERMINAL
TRADE MARK
WHT
WHT
WHT
YEL/GRN
BLU
BRW
POWER SUPPLY CORD
CONTROL
REMOTE
WIRELESS
CONTROLLER
ELECTRONIC
RECEIVER
CN-DISP (WHT)
AUTO SW
PUMP DOWN SW
TRANSFORMER
RY-C
RY-M
RY-H
ZNR2
CN-FM(GRN)
CAPACITOR
SSR
FAN
MOTOR
P
L
FUSE
BRW
WHT
35
RED
YEL
BRW
T(BLK) T(BLK)
WHT
WHT
BLK
YEL/GRN
C181KE07.DWG
PNK
YEL
ORG
RED
BRW
BA
REMOTE
CONTROL No.
2
13
4
ELECTRONIC CONTROLLER
BLK
BLK
220-240V, 50Hz
LOUVER
6
5
4
7
ORG
654
(TEST RUN)
ZNR1
SENSOR
(PIPE TEMP.)
RED
RED
THERMAL
FUSE
(113°C)
(102°C)
FUSE
THERMAL
RED RED
13
CR1
CN-T(WHT)
CN-FUSE(BLU)
23 1
WHT
WHT
WHT
1
2
3
1
9
BLU
CR3
(T 3.15A L 250V)
CR2
AC (WHT)
CN-FUSE 1
YEL/GRN
WHT
YELLOW
(BLU) (RED)
YEL/GRN
YEL
BLU
FUSE
ORG BRW
FAN MOTOR
BLU
RED
CAPACITOR
BLU
HL
C
BLU
CAPACITOR
BLU
RED
COMPRESSOR
CS/CU-C181KE
J9890708
YEL
+
DISPLAY LAMP
L250V
T3.15A
THERMOSTAT
Wiring Diagram
REMARKS:
BLU : BLUE
BRW : BROWN
BLK : BLACK
WHT : WHITE
RED : RED
ORG : ORANGE
PNK : PINK
YEL/GRN : YELLOW/
GREEN
GRY : GRAY
CS-C181KE / CU-C181KE
CS-C241KE / CU-C241KE
CONNECTION
YELLOW - BLUE
YELLOW - BROWN
BROWN - ORANGE
ORANGE - RED
Resistance of Indoor Fan Motor Windings
CU-C181KE
CWA92272 ()
79.5
65.1
70.8
CU-C241KE
CWA92271 ()
46.8
64.6
73.7
CONNECTION
BLUE - BROWN
BROWN - ORANGE
RED - BROWN
CS-C241KE
CWA92287 ()
176.0
70.4
71.7
148.7
CS-C181KE
CWA92270 ()
357.0
41.7
63.1
249.6
Resistance of Outdoor Fan Motor Windings
CONNECTION
C-R
C-S
CU-C181KE
2JS350D3AA02 ()
0.980
3.929
CU-C241KE
2JS464D3AA02 ()
0.888
2.328
Resistance of Compressor Windings
Untitled-2 6/19/00, 5:14 PM12

Related product manuals