EasyManua.ls Logo

Panasonic CU-C181KE - Page 44

Panasonic CU-C181KE
45 pages
Print Icon
To Next Page IconTo Next Page
To Next Page IconTo Next Page
To Previous Page IconTo Previous Page
To Previous Page IconTo Previous Page
Loading...
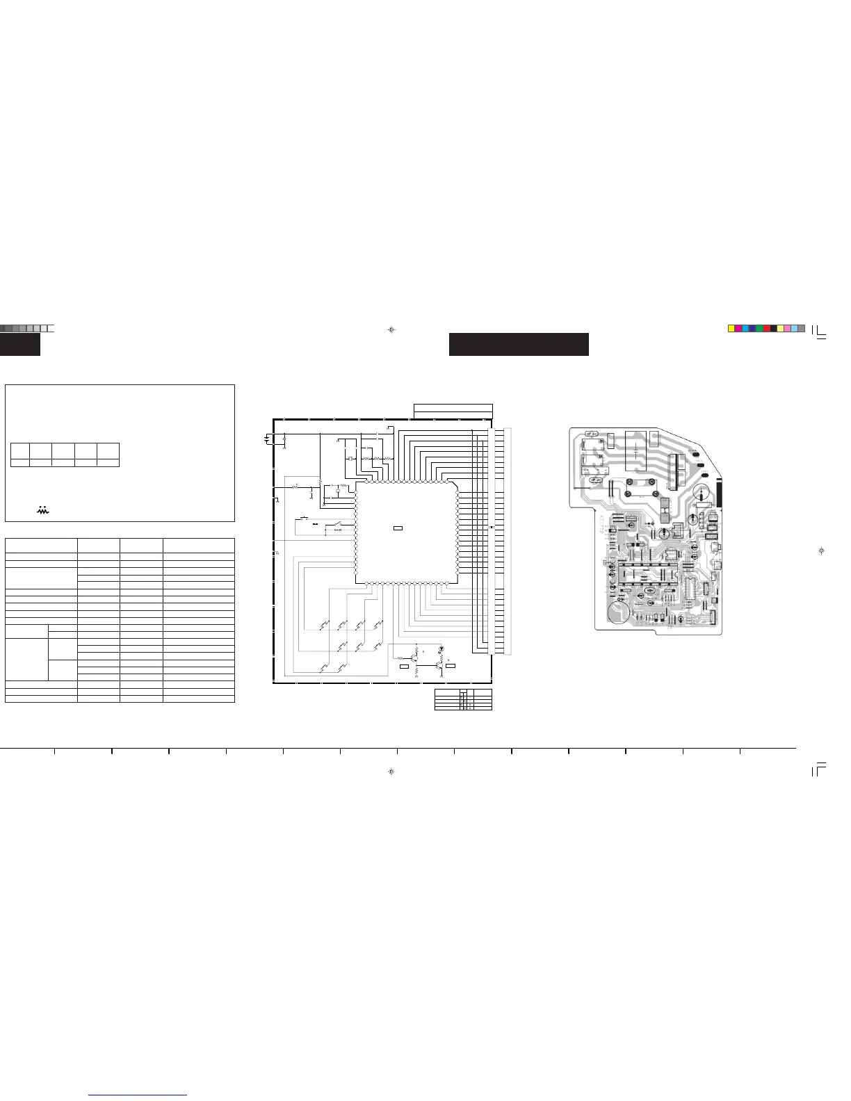
CS-C181K/C241K CS-C181K/C241K
PRINT PATTERN
INDOOR UNIT PRINTED CIRCUIT BOARD
Name
Sleep Mode Waiting
Sleep Mode Operation
Real Timer
Time Delay Safety Control
Forced Operation
Time Save Control
Anti-Freezing Control
Mode Jugdement
Soft Dry
Deodorizing Control
Comp./Fan motor Delay Timer
Intake Air Anti-Freezing Prevention
Outdoor Fan Delay Timer
Off
On
Cooling
Soft Dry
Remarks
SOFT DRY: 10 min. operation
Comp. ON
Comp. ON
Comp. OFF
Comp. OFF
Comp. ON
Comp. OFF
Comp. ON 5 min. and above
Time
1 hr.
8 hrs.
1 hr.
10 min.
1 min.
2 min. 58 sec.
60 sec.
7 min.
4 min.
20 sec.
6 min.
10 min.
40 sec
70 sec.
20 sec.
180 sec.
40 sec.
360 sec.
1.6 min.
16 min.
1.6 sec.
Before using the circuit diagram, read the following carefully.
* Indications for capacitor
a. Unit µ .... µF P ....pF
b. Type Not indicated ...
ceramic capacitor
(S) ..........S series aluminium
electrolytic capacitor
(Z) .......... Z series aluminium
electrolytic capacitor
(SU) ....... SU series aluminium
electrolytic capacitor
(P) ..........
P series polyester system
(SXE) ..... SXE series aluminium
electrolytic capacitor
(SRA)...... SRA series aluminium
electrolytic capacitor
(KME)......KME series aluminium
electrolytic capacitor
* Voltage measurement
Voltage has been measured with a digital
tester when the indoor fan is set at high fan
speed under the following conditions without
setting the timer.
Use them for servicing.
Voltage indication is in Red at all operations.
* Diode without indication ..............MA165
* Circuit Diagram is subject to change without
notice for further development.
Discharge air
temperature
17°C
Pipe
temperature
15°C
Intake air
temperature
27°C
Temperature
setting
16°C
Cooling
Test mode
6 sec.
48 sec.
1 min.
10 sec.
1 sec.
0 sec.
0 sec.
42 sec.
0 sec.
0 sec.
36 sec.
60 sec.
4 sec.
7 sec.
2 sec.
18 sec.
4 sec.
36 sec.
0 sec.
9.6 sec.
0 sec.
( )
When test point
Short-circuited
How to use electronic circuit diagram
* Indications for resistance
a. K.... k M ... M
W... watt Not indicated .... 1/4W
b. Type
Not indicated .......... carbon resister
Tolerance±5%
.......... metal oxide resister
Tolerance±1%
TIMER TABLE
1
A
B
C
D
E
F
G
2 3 4 5 6 7 8 9 10 11 12 13 14
17
18
19
20
21
22
23
24
25
26
27
28
29
30
31
32
33 34 35 36 37 38 39 40 41 42 43 44 45 46 47 48
49
50
51
52
53
54
55
56
57
58
59
60
61
62
63
64
12345678910111213141516
R4
22K
R2
3.3K
R5
1/8 W
2.2
LED1
SE1003
R7
100K
R8
100K
R9
100K
X1
440kHz
C2
100p
C3
100p
(SL) (SL)
C8
0.01µ
C9
0.01µ
+
C1
6.3V
(SRA)
R1
30K
R6
300
C6
REMOTE
SW1 (DOOR OPEN:OFF)
REMOTE CONTROLLER
A
SW2
J-B
C4
33p
(NPO)
C5
18p
(NPO)
RESET
TEST
REMARKS
AT DELIVERY
J-B
AB
REMOTE CONTROL
NO.
0
1
2
3
J-B: THE O MARK INDICATES "JUMPER WIRE"
WIRELESS REMOTE CONTROL
SEG 7
SEG 8
SEG 9
SEG 10
SEG 11
SEG 12
SEG 13
SEG 14
SEG 15
SEG 16
SEG 17
SEG 18
SEG 19
SEG 20
SEG 21
SEG 22
SEG 29
SEG 28
SEG 27
SEG 26
SEG 25
SEG 24
SEG 23
SEG 30
SEG 31
SEG 32
RMO
BZ/42
23
22
21
20
10
11
12
13
03
02
01
00
SBT/33
SBD/32
SYNC/31
IRQ/30
RST
VSS
X1
X0
CWA74572
X2
32.768KHz
100µ
C7
0.01µ
B
LIQUID CRYSTAL DISPLAY
RUBBER CONNECTORRUBBER CONNECTOR
CONTROLLER DOOR
ON/OFF
R03 x 2
SW2
SEG 6
SEG 5
SEG 4
SEG 3
SEG 2
SEG 1
SEG 0
COM 2
COM 1
COM 0
OSC 1
OSC 2
VICD 3
VICD 2
VICD 1
VDD
LED DRIVE
2SD602
Q1
Q2
2SD602
LED SWITCHING
MICROPROCESSOR
MN158453ABC
IC1
AUTOMATIC
AIRFLOW
DIRECTION
(CANCEL)
TEMP-
(TIME-)
AIRFLOW
DIRECTION
MANUAL
(SET)
TIMER
OPERATION
MODE
SELECT
(OFF TIMER)
TEMP+
(TIME+)
INDOOR
FAN SPEED
SELECT
(ON TIMER)
OPERATION
START/STOP
SLEEP
MODE
OPERATION
R3
51
R10
220K
CS-C181K/C241K
ELECTRONIC CIRCUIT DIAGRAM
REMOTE CONTROL
C181KE-ECD 6/19/00, 5:05 PM2

Related product manuals