EasyManua.ls Logo

Panasonic CU-E9DKE - Page 90

Panasonic CU-E9DKE
98 pages
Print Icon
To Next Page IconTo Next Page
To Next Page IconTo Next Page
To Previous Page IconTo Previous Page
To Previous Page IconTo Previous Page
Loading...
HORIZONTAL
1
2
3
4
5
1
2
3
4
5
CN-STM2
1
2
3
4
CN-TH
SW01
VERTICAL
1
2
3
4
5
1
2
3
4
5
CN-STM1
3
2
1
3
2
1
CN-SONIC
CN-SONIC1
1
2
3
4
5
1
2
3
4
CN-ION
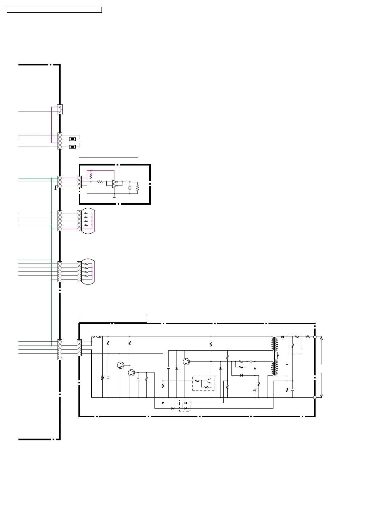
AIR CLEANER COMPLETE
R601
1k
R602
5.1k
R603
1M
C601
0.1µ
X601
IC601
CH1
F1
CH1
VIN
GND
ERR
C2 C1
Q1
Q2
Q4
Q5
R2
c
e
b
4.7k
10k
e
b
c
C3 R4
R3
R5
D2
Z01
D4
c
e
b
C8
D1
D3
R14
R13
R9
R15
R10
R102
-4.2kV
R101
HV
CN2
R12
C5
D5
C6
Z02
c
e
b
R6
T1
D101
D102
C101
C7
GND
CN3
HIGH VOLTAGE IONIZER
AIR TEMP. SENSOR
(15k 3950)
(20k 3950)
PIPE TEMP. SENSOR 1
SCHEMATIC DIAGRAM 4/4
90
CS-E9DKEW CU-E9DKE / CS-E12DKEW CU-E12DKE
This document is protected (secured) by www.nettovarmepumpar.se

Table of Contents

Related product manuals