EasyManua.ls Logo

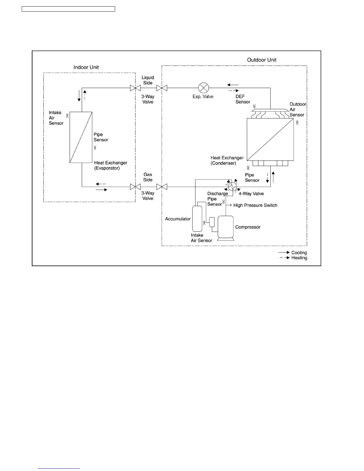
Panasonic CU-L28DBE5 - 5 Refrigeration Cycle

Panasonic CU-L28DBE5
112 pages
Print Icon
To Next Page IconTo Next Page
To Next Page IconTo Next Page
To Previous Page IconTo Previous Page
To Previous Page IconTo Previous Page
Loading...
5 Refrigeration Cycle
16
CS-F24DB4E5 CU-L24DBE5 / CS-F28DB4E5 CU-L28DBE5

Table of Contents