EasyManua.ls Logo

Panasonic CU-PC12JKF - Indoor Unit

Panasonic CU-PC12JKF
48 pages
Print Icon
To Next Page IconTo Next Page
To Next Page IconTo Next Page
To Previous Page IconTo Previous Page
To Previous Page IconTo Previous Page
Loading...
18
11.2. Indoor Unit
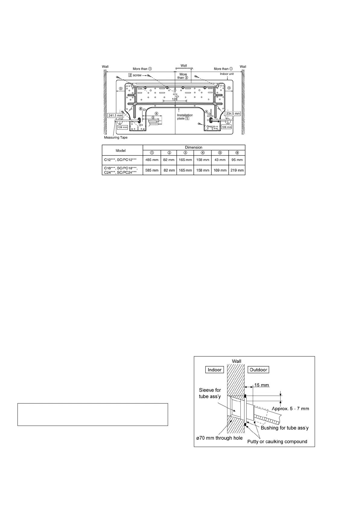
11.2.1. How To Fix Installation Plate
The mounting wall is strong and solid enough to prevent it from the vibration.
The centre of installation plate should be at more than 1 at right and left of the wall.
The distance from installation plate edge to ceiling should more than 2.
From installation plate left edge to unit's left side is 3.
From installation plate right edge to unit's right is 4.
B : For left side piping, piping connection for liquid should be about 5 from this line.
: For left side piping, piping connection for gas should be
about 6 from this line.
1. Mount the installation plate on the wall with 5 screws or more (at least 5 screws).
(If mounting the unit on the concrete wall, consider using anchor bolts.)
Always mount the installation plate horizontally by
aligning the marking-off line with the thread and using a level gauge.
2. Drill the piping plate hole with ø70 mm hole-core drill.
Putting measuring tape at position as shown in the diagram above.
The hole center is obtained by measuring the distance namely 128 mm for left and right hole respectively. Another method is
intersection point of arrow mark extension.
The meeting point of the extension arrow mark is the hole center position.
Drill the piping hole at either the right or the left and the hole should be slightly slanting to the outdoor side.
(refer to step 3)
11.2.2. To Drill A Hole In The Wall And
Install A Sleeve Of Piping
1. Insert the piping sleeve to the hole.
2. Fix the bushing to the sleeve.
3. Cut the sleeve until it extrudes about 15 mm from the
wall.
4. Finish by sealing the sleeve with putty or caulking
compound at the final stage.
Caution
When the wall is hollow, please be sure to use the sleeve for tube
ass’y to prevent dangers caused by mice biting the connecting cable.

Related product manuals