EasyManua.ls Logo

Panasonic CU-PS12PKV - Refrigeration Cycle Diagram

Panasonic CU-PS12PKV
116 pages
Print Icon
To Next Page IconTo Next Page
To Next Page IconTo Next Page
To Previous Page IconTo Previous Page
To Previous Page IconTo Previous Page
Loading...
14
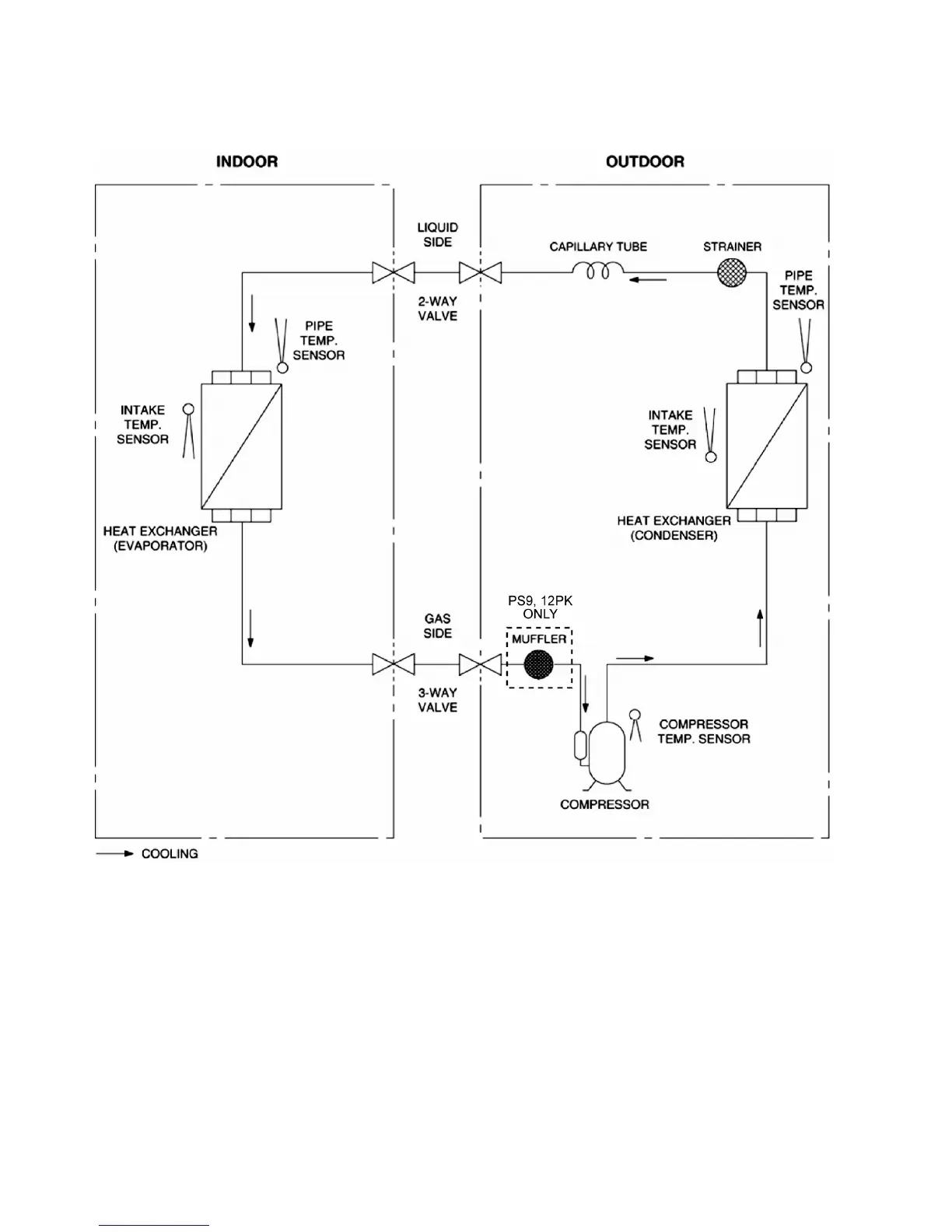
5. Refrigeration Cycle Diagram
5.1 CS-PS9PKV CU-PS9PKV CS-PS12PKV CU-PS12PKV

Table of Contents

Related product manuals