EasyManua.ls Logo

Panasonic CU-S24PKH - Cs-S24 Pk Cu-S24 Pk

Panasonic CU-S24PKH
187 pages
Print Icon
To Next Page IconTo Next Page
To Next Page IconTo Next Page
To Previous Page IconTo Previous Page
To Previous Page IconTo Previous Page
Loading...
34
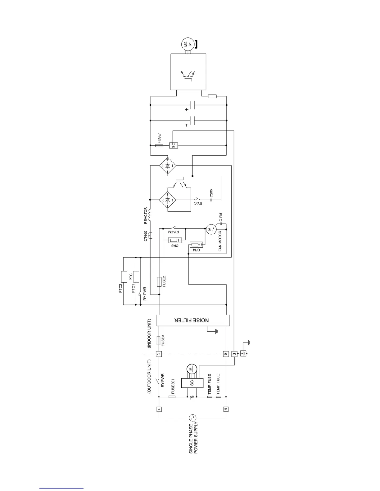
6.6 CS-S24PK CU-S24PK

Table of Contents

Related product manuals