EasyManua.ls Logo

Panasonic DMC-GH3P - Page 88

Panasonic DMC-GH3P
129 pages
Print Icon
To Next Page IconTo Next Page
To Next Page IconTo Next Page
To Previous Page IconTo Previous Page
To Previous Page IconTo Previous Page
Loading...
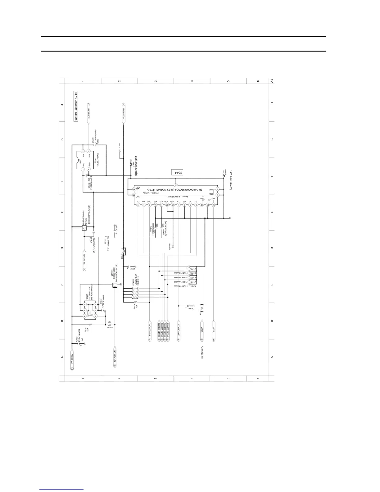
Model No. : DMC-GH3/GH3A/GH3H SD card (SD) (Main P.C.B.)

Table of Contents

Related product manuals