EasyManua.ls Logo

Panasonic FV-OSVQS - Dimensions; Wiring Diagram

Panasonic FV-OSVQS
12 pages
Print Icon
To Next Page IconTo Next Page
To Next Page IconTo Next Page
To Previous Page IconTo Previous Page
To Previous Page IconTo Previous Page
Loading...
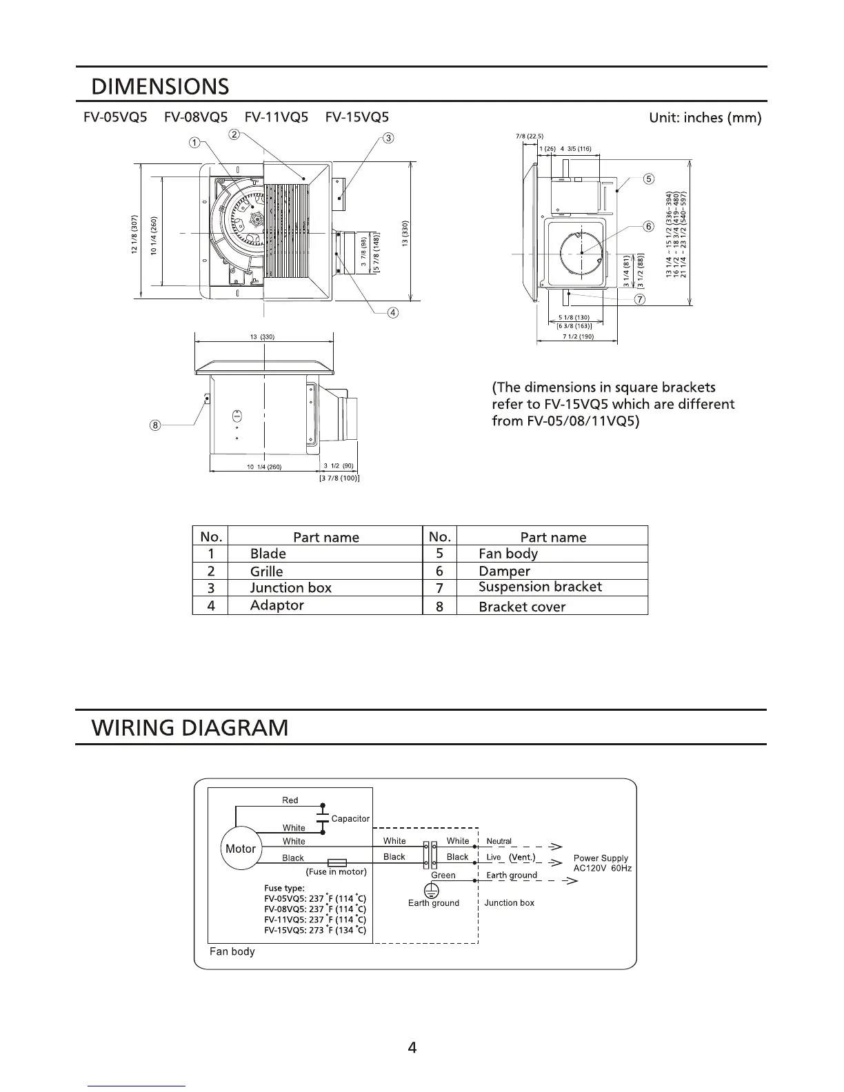
DIMENSIONS
FV-05VQ5 FV-08VQ5 FV-11VQ5 FV-15VQ5
Unit: inches (mm)
(The dimensions in square brackets
refer
to
FV-15VQ5 which are
different
from
FV-05/08/11VQ5)
(31111(100)1
No.
Part name
No.
Part name
1 Blade
5
Fan
body
2 Grille 6
Dam__l!er
3
Junction
box
7
Suspension bracket
4
Adaptor
8 Bracket cover
WIRING DIAGRAM
capacitor
r-~~-------+-W~h~lm~-M~~~W~h~lm~:~~~
~
Black
Black
Black
::
~
~e~.)
=
~
Powar
Supply
~____:=~--i':3--+-=;;.;.._-+ti+-'=:...t-,-=
AC120V
60Hz
(Fuse
in
motor) Green
.:
Ear!!J
i..fD!!..nd
_ _
->
Fuse
type: e :
FV~5VQ5:
237
'F (1
14
'c)
Earth
ground
,'
Junction
box
FV.{)8VQ5:
237
•F
(1
14
'
C)
FV-11VQ5:
237
'F(114
'
C)
:
FV-1
5VQ5:
273
'F
(134
'
C)
:
'::-------:----:-------__J---------------'
Fan
body
4

Related product manuals