EasyManua.ls Logo

Panasonic GCSEB E - Connect the Speaker Cables

Panasonic GCSEB E
40 pages
Print Icon
To Next Page IconTo Next Page
To Next Page IconTo Next Page
To Previous Page IconTo Previous Page
To Previous Page IconTo Previous Page
Loading...
5
RQT7429
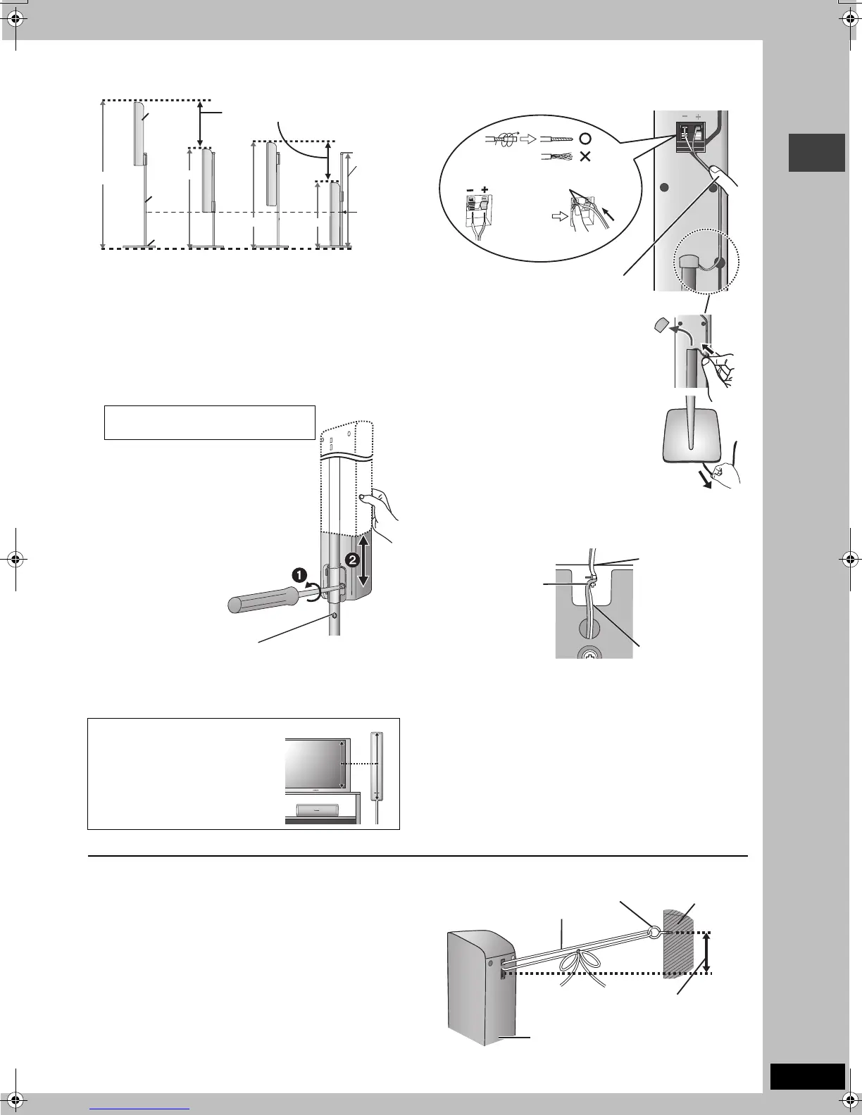
Front and surround speaker assembly
Front and surround speaker height
(Assembled diagram)
3 Adjust the speaker height.
Check the screws you tightened on page 4.
e.g. Attaching the stand to the lower rear of the speaker
4 Connect the speaker cables.
5 Fasten the speaker cable to the base.
Preventing the speakers from falling over (Front and surround speakers)
Preparation
Attach screw eyes (not included) to secure the speakers to the wall
(diagram right).
You will need to obtain the appropriate screw eyes to match the
walls and pillars to which the screw eyes are going to be
fastened.
Consult with a qualified housing contractor concerning the
appropriate procedure when attaching to a concrete wall or a
surface that may not have strong enough support. Improper
attachment may result in damage to the wall or speakers.
1 Thread the string (not included) through the slot on the
rear of the speaker to prevent it from falling over.
2 Loop the string through the screw eye and tie tightly.
For your reference
You can enjoy good acoustics by
adjusting the height of the speaker
with the height of the television so the
center positions of both are
approximately the same.
1,160 mm
Speaker
Pipe
Base
750 mm
818 mm
575 mm
704 mm
Stoppe
r
screw
Do not
remove.
You can adjust within this range.
Attach to lower
rear of speaker.
Attach to upper
rear of speaker.
Stopper screw
Screw to stop mounting plate from moving or
sliding below this point.
1 Loosen the attached speaker mounting
plate screw until the attached speaker is
slightly loose and adjustable.
Be careful not to loosen the screw too
much or the speaker may detach and fall.
2 With one hand on the base, and the other
holding the speaker, adjust the height of
the speaker up and down.
After adjusting the height, tighten the screw
on the mounting plate securely.
Phillips-head screwdriver
_: Copper
`: Silver
Push!
Rear speaker
panel
1 Twist off the vinyl ends of
the speaker cables.
2 Press the speaker cable into the groove.
If there is any excess speaker cable,
detach the rubber cap on the top of
the pipe and thread the speaker
cable into the opening while pulling
the speaker cable from the bottom of
the base.
Insert the wire
fully.
Rear side of base
Cable
1 Press the speaker
cable and thread
between the
hooks.
2 Fit the speaker
cable into the
base cover
groove as far as
possible.
String (not included)
Screw eye (not included)
Rear of the speaker
Approx. 150 mm
e.g.
Wall
RQT7429-2B book.book 5 ペー 00  

Related product manuals