EasyManua.ls Logo

Panasonic NV-GS21EB - Evf Backlight; Cassette Cover Schematic Diagrams

Panasonic NV-GS21EB
110 pages
Print Icon
To Next Page IconTo Next Page
To Next Page IconTo Next Page
To Previous Page IconTo Previous Page
To Previous Page IconTo Previous Page
Loading...
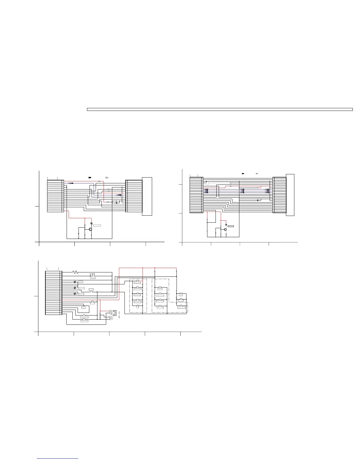
10.5. EVF BACKLIGHT / CASSETTE COVER SCHEMATIC DIAGRAMS
NOTE:
FOR SCHEMATIC DIAGRAM AND CIRCUIT BOARD LAYOUT NOTES,
REFER TO BEGINNING OF SCHEMATIC SECTION.
NOTE:
PARTS MARKED "PT" ARE NOT USED.
NOTE: For placing a purchase order of the parts,
be sure to use the part number listed in the parts list.
Do not use the part number on this diagram.
NV-GS6EE/GC, NV-GS17EG/EF/E/EP/EB, NV-GS18E, NV-GS21EG/EK/E/EP/EB,
NV-GS25GC/GN, NV-GS28GK, NV-GS35EG/E/EP/EB/GC/GN, NV-GS38GK
EVF BACKLIGHT SCHEMATIC DIAGRAM
NV-GS6EE/GC, NV-GS17EG/EF/E/EP/EB, NV-GS18E,
NV-GS21EG/EK/E/EP/EB, NV-GS25GC/GN, NV-GS28GK
EVF BACKLIGHT SCHEMATIC DIAGRAM
CASSETTE COVER SCHEMATIC DIAGRAM
FP902
16
15
14
13
12
11
10
9
8
7
6
5
4
3
2
1
FP901
16
15
14
13
12
11
10
9
8
7
6
5
4
3
2
1
0
R904
0
R906
0
R905
1C903
MAZ80470ML
D902
0.1
C902
E1S35(A2/A3/B5/B6)
D901
2SD2216JRL
Q901
R902
10K[D]
33K[D]
R901
47[D]
R903
*
PT
C901
STH
CSV
V
ENB
XSTH
CKH2
CKV1
NC
DSD
VDD
DSG
COM
VBB
VSS
CKH1
STV
EVF_CKH2
EVF_G
EVF_BL_SW
EVF_VDD
EVF_XSTH
EVF_VCOM
EVF_VSS
EVF_CKV1
EVF_DSG
EVF_ENB
EVF_VSS
EVF_STH
EVF_DSD
EVF_STV
EVF_CKH1
EVF_BL_5V
EVF LCD PANEL
PB VIDEO SIGNALREC VIDEO SIGNAL
BACKLIGHT
(LED DRIVE)
TO MAIN
C.B.A. FP11
1
A
B
234
CASSETTE COVER SCHEMATIC DIAGRAM
“FOR REFERENCE ONLY”
NOTE:
CASSETTE COVER UNIT IS NOT SERVICEABLE AND IS
SUPPLIED AS A UNIT ONLY FOR REPLACEMENT.
10K
PHOTO SHOT
10K
PC
10K
START/STOP
TAPE PLAY
POWER
ZOOM
DEW SENSOR
STANDBY
POWER
CARD REC
CARD PLAY
ENTER
5600
UP(PLAY)
2700
10K
18K
RIGHT(FF)
LEFT(REW)
MENU
10K
STANBY
DOWN(STOP)
2700
18K
5600
RESET
P2
22
21
20
19
18
17
16
15
14
13
12
11
10
9
8
7
6
5
4
3
2
1
LIGHT
TAPE REC
12K
10K
10K
CENTER
MODE DIAL CROSS KEY
[FOCUS]
3
[AUTO]
2
[MANUAL]
4
1
ZOOM-COM
POWER-LED
CENTER-LED--
S/S-SW
CROSS-KEY
DEW
AUTO/MNL
NC
GND
RESET
MODE-VDD
NC
TELE
CENTER-LED++
WIDE
PHOTO-SW
GND(LED)
OPE-KEY1
STANDBY_LED
POWER_SW
LIGHT_SW
MODE-DIAL
TO MAIN C.B.A.
FP10
1
A
B
2345
R953
10K[D]
30K[D]
R952
0R956
FP951
22
21
20
19
18
17
16
15
14
13
12
11
10
9
8
7
6
5
4
3
2
1
0
R955
0.1
C951
0
R957
39[D]
R954
1C952
FP952
22
21
20
19
18
17
16
15
14
13
12
11
10
9
8
7
6
5
4
3
2
1
MAZ80470ML
D952
*
PT
C953
2SD2216JRL
Q951
PT
R958
PT
R959
E1S35(A2/A3/B5/B6-6/7)
D951
XENB
CKV2
CKH2
R
CKV1
VDD
CSV
CKV2
DSD
B
CKV1
VDD
XSTH
VSS
ENB
R
XSTH
XSTV
DSG
COM
CSH
DSG
BL_SW
XENB
STH
BL_5V
XDSG XDSG
STV
CKH1
XSTV
VSS
B
VSS
DSDCKH2
STH
STV
CKH1
ENB
G
COM
VBB
G
BACKLIGHT
(LED DRIVE)
EVF LCD PANEL
REC VIDEO SIGNAL PB VIDEO SIGNAL
TO MAIN C.B.A.
FP9
1
A
B
C
234
EVF BACKLIGHT SCHEMATIC DIAGRAM NV-GS35EG/E/EP/EB/GC/GN, NV-GS38GK
“FOR REFERENCE ONLY”
NOTE:
EVF BACKLIGHT IS NOT SERVICEABLE AND IS
SUPPLIED AS A UNIT ONLY FOR REPLACEMENT.
“FOR REFERENCE ONLY”
NOTE:
EVF BACKLIGHT IS NOT SERVICEABLE AND IS
SUPPLIED AS A UNIT ONLY FOR REPLACEMENT.
NV-GS6EE / NV-G S6GC / NV-GS17E / NV-G S17EB / NV-GS17E F / NV-GS17EG / NV-GS17E P / NV-GS18E / NV-GS21E / NV-GS21EB / NV-GS21E G / NV-GS21EK / NV-GS21E P / NV-GS25GC / NV-GS25GN / NV-GS28G K / NV-GS35E / NV-GS35E B / NV-GS35EG / NV-GS35E P / NV-GS35GC / NV-GS35GN / NV-GS38 GK
71

Other manuals for Panasonic NV-GS21EB

Related product manuals