EasyManua.ls Logo

Panasonic NV-GS21EB - CCD; Side Case R; Lcd Sw Schematic Diagrams

Panasonic NV-GS21EB
110 pages
Print Icon
To Next Page IconTo Next Page
To Next Page IconTo Next Page
To Previous Page IconTo Previous Page
To Previous Page IconTo Previous Page
Loading...
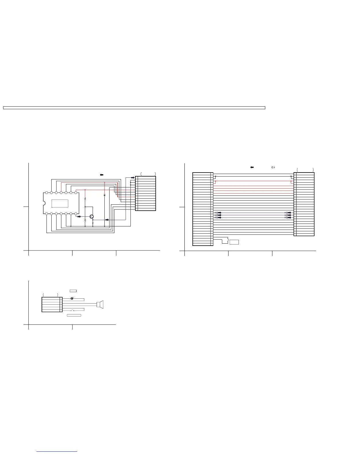
10.6. CCD / SIDE CASE R / LCD SW SCHEMATIC DIAGRAMS
NOTE:
FOR SCHEMATIC DIAGRAM AND CIRCUIT BOARD LAYOUT NOTES,
REFER TO BEGINNING OF SCHEMATIC SECTION.
NOTE:
PARTS MARKED "PT" ARE NOT USED.
NOTE: For placing a purchase order of the parts,
be sure to use the part number listed in the parts list.
Do not use the part number on this diagram.
NV-GS6EE/GC, NV-GS17EG/EF/E/EP/EB, NV-GS18E, NV-GS21EG/EK/E/EP/EB,
NV-GS25GC/GN, NV-GS28GK, NV-GS35EG/E/EP/EB/GC/GN, NV-GS38GK
CCD SCHEMATIC DIAGRAM LCD SW SCHEMATIC DIAGRAM
FOR REFERENCE ONLY
NOTE:
LCD SW IS NOT SERVICEABLE AND IS
SUPPLIED AS A SHAFT CASE UNIT ONLY FOR REPLACEMENT.
CCD SCHEMATIC DIAGRAM
SIDE CASE R SCHEMATIC DIAGRAM
LCD SW SCHEMATIC DIAGRAM
Q601
2SC3931
R601
5600
IC601
1
V4
2
V3
3
V2
4
V1
5
GND
6
SBSW
7
CCDOUT
8
VDD
9
RESET
10
SUB
11
PT
12
H1
13
H2
14
TEST
PIN
1
CCDOUT
2
GND
3
GND
4
GND
5
V1
6
12V
7
RESET
8
SUB
9
-7.5V
10
H1
11
H2
12
V2
13
V3
14
V4
C601
1[KB]
R602
0
C602
1[KB]
NTSC :MN39165FD
PAL :MN39265FD
[2012] [1608]
[3216]
[1608]
TO MAIN C.B.A.
FP301REC VIDEO SIGNAL
(BUFFER)
1
A
B
23
SIDE CASE R SCHEMATIC DIAGRAM
NOTE:
SIDE CASE R UNIT IS NOT SERVICEABLE AND IS
SUPPLIED AS A UNIT ONLY FOR REPLACEMENT.
FP7
1LCD_OPEN
2GND
3SP-
4SP+
5GND
6ACCESS_LED
SW6801
LCD OPEN/CLOSE
D6801
B3AAB0000146
ACCESS
+
-
SPEAKER
TO MAIN C.B.A.
FP7
1
A
2
SW9001
30
29
28
27
26
25
24
23
22
21
18
17
16
15
14
13
12
11
10
9
8
7
6
5
4
3
2
1
19
20
1
BL_CONT
2
A_GND
3
A_GND
4
LCD_BL+5V
5
LCD_BL+5V
6
LCD+5V
9
LCD+3V
10
LCD_STH1
11
LCD_OEH
12
LCD_Q2H
13
LCD_CLK1
14
LCD_CLK2
15
LCD_CLK3
16
LCD_R/L
17
LCD_B
18
LCD_G
19
LCD_R
20
LCD_STH2
21
LCD_COM
22
LCD_STV2
23
LCD_OEV
24
LCD_CPV
25
LCD_U/D
26
LCD_STV1
8
LCD+12V
7
LCD-15V
NORMAL/
REVERSE
REC VIDEO SIGNAL PB VIDEO SIGNAL
A_GND
LCD_STH1
LCD+3V
LCD_R/L
LCD_OEV
LCD_BL+5V
LCD_Q2H
LCD_STV2
LCD_CLK1
LCD+12V
LCD_CLK3
LCD_OEH
LCD_STH2
LCD_B
LCD-15V
LCD_U/D
A_GND
LCD_STV1
LCD_RVS
LCD_R
(TO MAIN C.B.A. FP8)
LCD+5V
LCD_BL+5V
BL_CONT
NC
GND
LCD_CPV
LCD_COM
LCD_CLK2
NC
LCD_G
TO LCD BACKLIGHT
C.B.A. FP8101
1
A
B
23
FOR REFERENCE ONLY
NOTE:
CCD C.B.A. IS NOT SERVICEABLE AND IS
SUPPLIED AS A UNIT ONLY FOR REPLACEMENT.
FOR REFERENCE ONLY
NV-GS6EE / NV-G S6GC / NV-GS17E / NV-G S17EB / NV-GS17E F / NV-GS17EG / NV-GS17E P / NV-GS18E / NV-GS21E / NV-GS21EB / NV-GS21E G / NV-GS21EK / NV-GS21E P / NV-GS25GC / NV-GS25GN / NV-GS28G K / NV-GS35E / NV-GS35E B / NV-GS35EG / NV-GS35E P / NV-GS35GC / NV-GS35GN / NV-GS38 GK
72

Other manuals for Panasonic NV-GS21EB

Related product manuals