EasyManua.ls Logo

Panasonic PAW-FC2A-K018

Panasonic PAW-FC2A-K018
32 pages
To Next Page IconTo Next Page
To Next Page IconTo Next Page
To Previous Page IconTo Previous Page
To Previous Page IconTo Previous Page
Loading...
13
7. Electrical connections
WARNING
Before carrying out any work on the equipment, make sure that the electrical power supply is disconnected
and that there is no possibility of the unit being started inadvertently.
Non-compliance with the above instructions can lead to injury or death by electrocution.
1. The appliance shall be installed in accordance with national wiring regulations.
2. Power Line Size: 3 × 1,5 mm
2
.
3. The wiring and pipe connection for the fan coils should be done only by a qualified professional only!
4. An all-pole disconnection switch having a contact separation of at least 3mm in all poles should be connected in fixed
wiring.
Should the wiring diagram covered in the instruction manual differ with that adhered to the cover of the electric box, please always
give priority to the latter.
When connecting the electric wiring, should the wire length be of insufficient length, please contact the authorized service
centre to purchase a suitable replacement. Jointing of the wire is strictly forbidden.
- The electric wiring must be correctly connected, incorrect connection may cause spare parts malfunction.
- Tighten the terminal screw in order to prevent loose connections.
- After tightening the screw, lightly pull the wire to confirm that it is correctly connected.
- Incorrect connection of the earth wiring may result in electric shock.
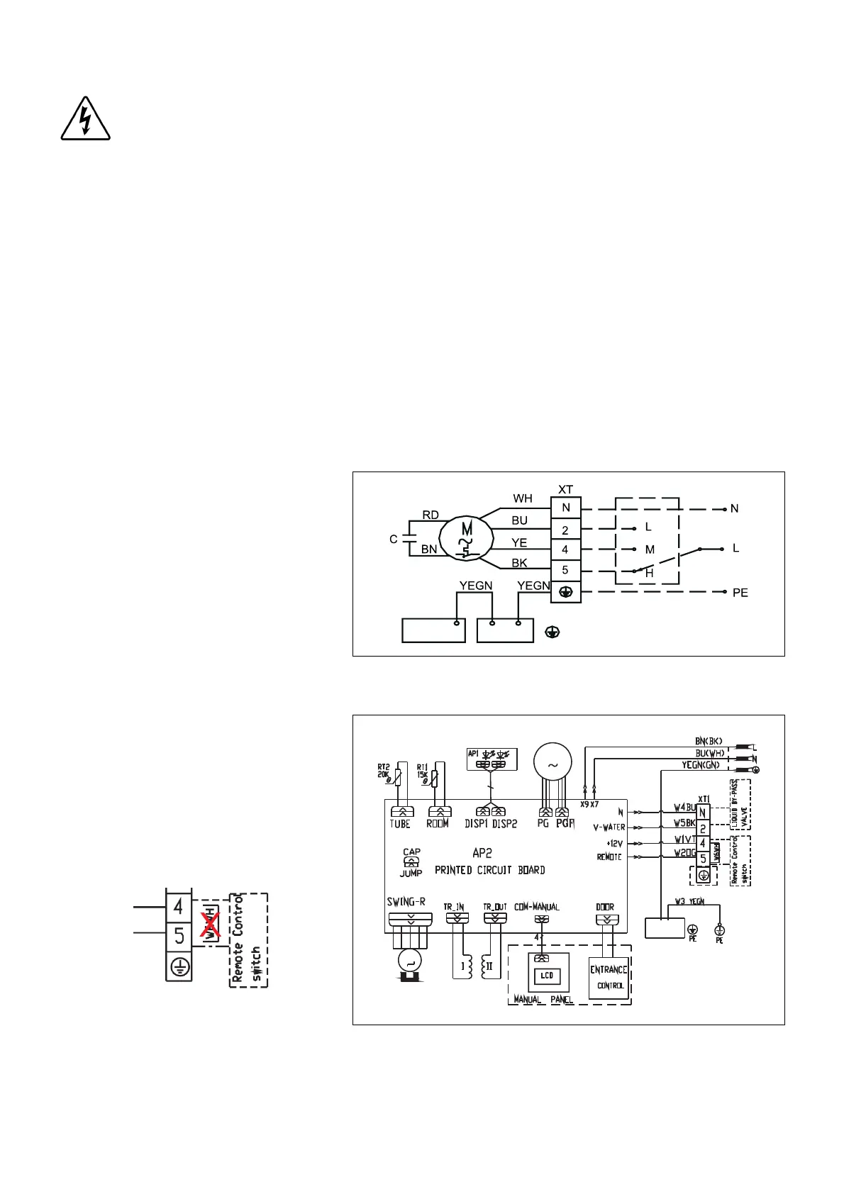
7.1 Wiring diagram (wall thermostat)
Terminal block (Wall thermostat)
XT Terminal board
M Fan motor
C Capacitor
L, M, H 3_speed switch
N, L Power supply 230Vac
PE Earth connection
EBC Electric box cover
EXH Coil exchanger
Note:
The power cable (shown dotted), should be prepared by
the user.
7.2 Wiring diagram (INFRARED without valve)
PT Pipe temperature sensor
RT Room temperature sensor
1 Display
M1 Fan motor
M2 Stepping motor
TC Transformer
EXH Coil exchanger
Attention:
If you want to use the Remote Control, please remove the
wire of W6 and connect with the wire of remote control
switch.
EBC
EXH
PT
RT
M1
1
TC
M2
EXH

Related product manuals