EasyManua.ls Logo

Panasonic PAW-FC2A-K018

Panasonic PAW-FC2A-K018
32 pages
To Next Page IconTo Next Page
To Next Page IconTo Next Page
To Previous Page IconTo Previous Page
To Previous Page IconTo Previous Page
Loading...
16
8.4 Installation
Install the thermostat about 1.5 m (59”) above the floor
Make sure the device is powered off prior to installation/service
Do not install in locations that can be affected by radiant heat or in places with high levels of sunlight
Do not install thermostats behind doors or in corners
Protect from water/debris to avoid damaging the Thermostat
8.5 Mounting
1
Insert a 3.5 mm flat
head screwdriver
along the bevel into
the slot.
Pry upwards with
appropriate force to
release the two
hooks
2
Remove the display
from the base module.
Carefully remove the
wire connections, if
required.
3
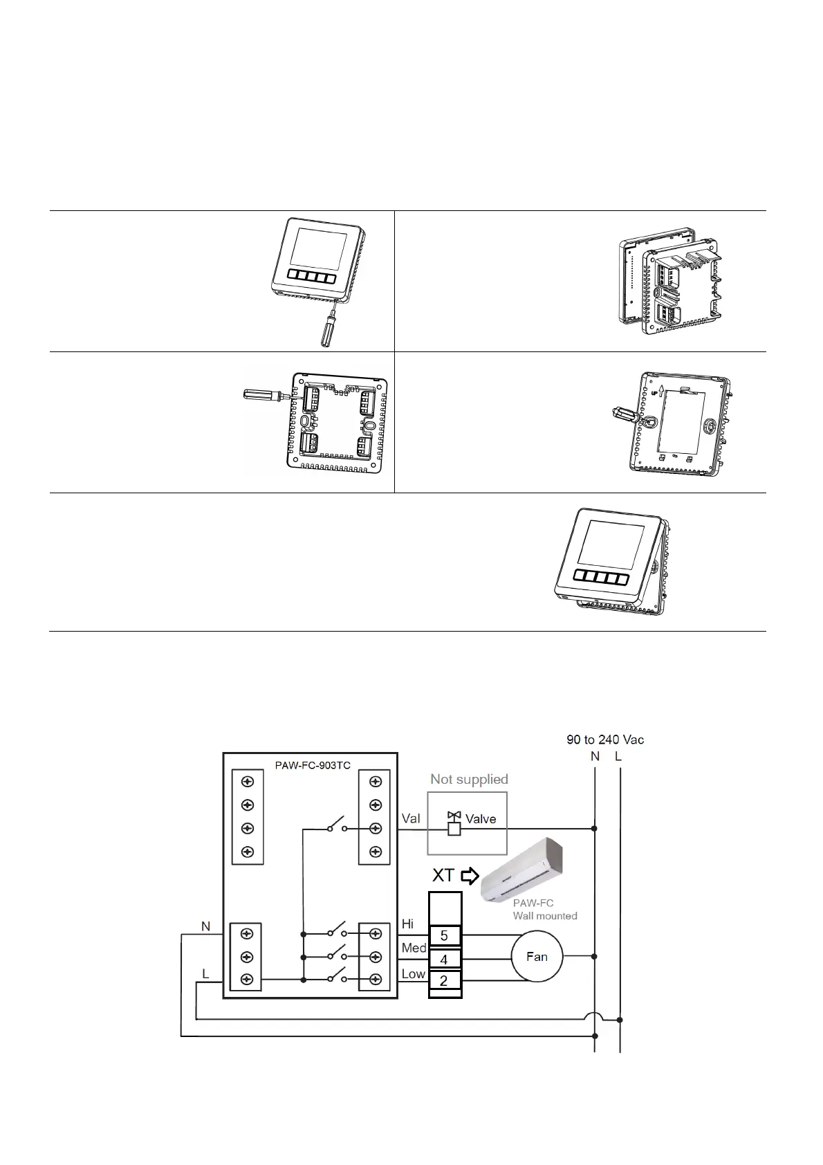
Connect the wires
according to the
appropriate wiring
diagram shown
above. Ensure the
polarity of the mains
supply is correct.
4
Mount the base
module onto the wall
box using the two
screws supplied.
5
Fit the display module onto the base module.
Align upper hooks between the two modules.
Carefully replace the wiring connection if it has been
removed.
Click display module onto base module using the two lower
hooks.
8.6 Wiring
Provide an approved disconnecting means and overcurrent protection to supply conductors. The disconnecting device(s) shall meet
the relevant requirements of IEC 60947-1 and IEC 60947-3 and shall be suitable for the application.
Locate and mark per local requirements.

Related product manuals