EasyManua.ls Logo

Panasonic S-36PN1E5 - Page 10

Panasonic S-36PN1E5
268 pages
To Next Page IconTo Next Page
To Next Page IconTo Next Page
To Previous Page IconTo Previous Page
To Previous Page IconTo Previous Page
Loading...
10
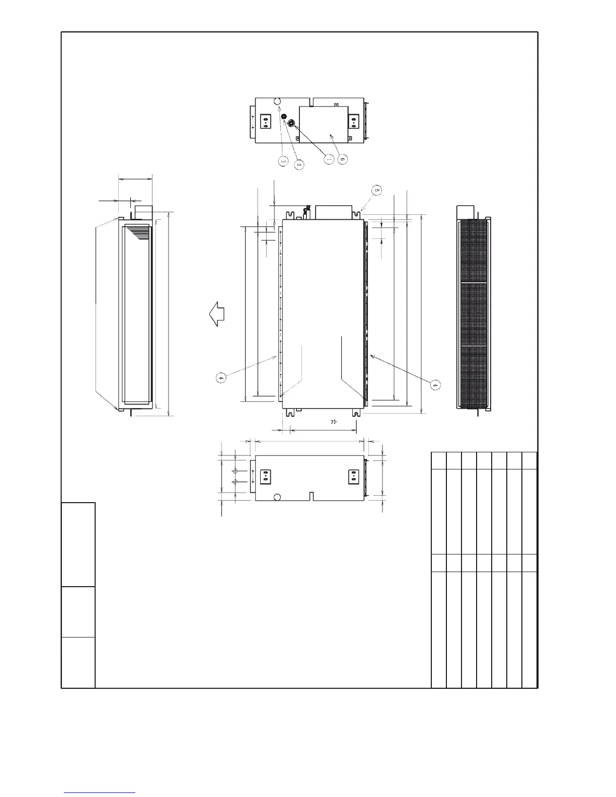
Unit:mm
Fig.3-2
UNIT : mm
Outside Dimensions MODEL NO.
S-100PN1E5
S-125PN1E5
S-140PN1E5
OUTLET
Drain pipe connection
No. NAME Q’TY NOTE
1 Pipe connection (gas) 1 O.D ø15.88 Flared
2 Pipe connection (liquid) 1 O.D ø9.52 Flared
3 Drain pipe connection 2 Female screw PT1"
4 Dutch connection 2
5 Hangger 4
6 Control box 1
1320
250
80
1200
1260
1160
1090
65
65
20
60
100
57.5
1040 (P65 x 16)
975 (P65 x 15)
44–ø4.5
46–ø4.5
523
64
650
3030
32
58
4848 65
31
31
187
161
P07-T11630.indb 10 2/27/2012 9:21:10 AM

Other manuals for Panasonic S-36PN1E5

Related product manuals