EasyManua.ls Logo

Panasonic S-36PN1E5

Panasonic S-36PN1E5
268 pages
To Next Page IconTo Next Page
To Next Page IconTo Next Page
To Previous Page IconTo Previous Page
To Previous Page IconTo Previous Page
Loading...
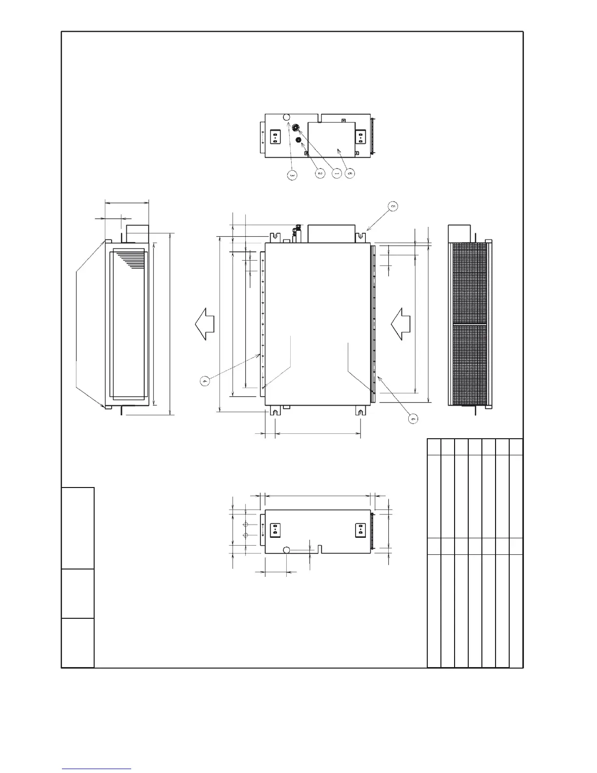
8
No.
NAME Q’TY
NOTE
1
Pipe connection (gas) 1
O.D ø12.7 Flared
2
Pipe connection (liquid) 1
O.D ø6.35 Flared
3
Drain pipe connection 2
Female screw PT1"
4
Dutch connection 2
5
Hangger 4
6
Control box 1
Air Flow
Air Flow
Drain pipe connection
UNIT : mm
Outside Dimensions MODEL NO.
S-36PN1E5
S-45PN1E5
S-50PN1E5
20
45
65
65
55
55
100
840
670
900
250
80
780
740
523
24–ø4.5
22–ø4.5
650
3030
134
23
32
58
4848 65
31
31
187
161
64
650 (P65 x 10)
585 (P65 x 9)
P07-T11630.indb 8 2/27/2012 9:20:57 AM

Other manuals for Panasonic S-36PN1E5

Related product manuals