EasyManua.ls Logo

Panasonic SA-PM29E - 18.3. Panel Circuit, Tact Switch Circuit, Headphone Circuit and Switch Circuit

Panasonic SA-PM29E
76 pages
Print Icon
To Next Page IconTo Next Page
To Next Page IconTo Next Page
To Previous Page IconTo Previous Page
To Previous Page IconTo Previous Page
Loading...
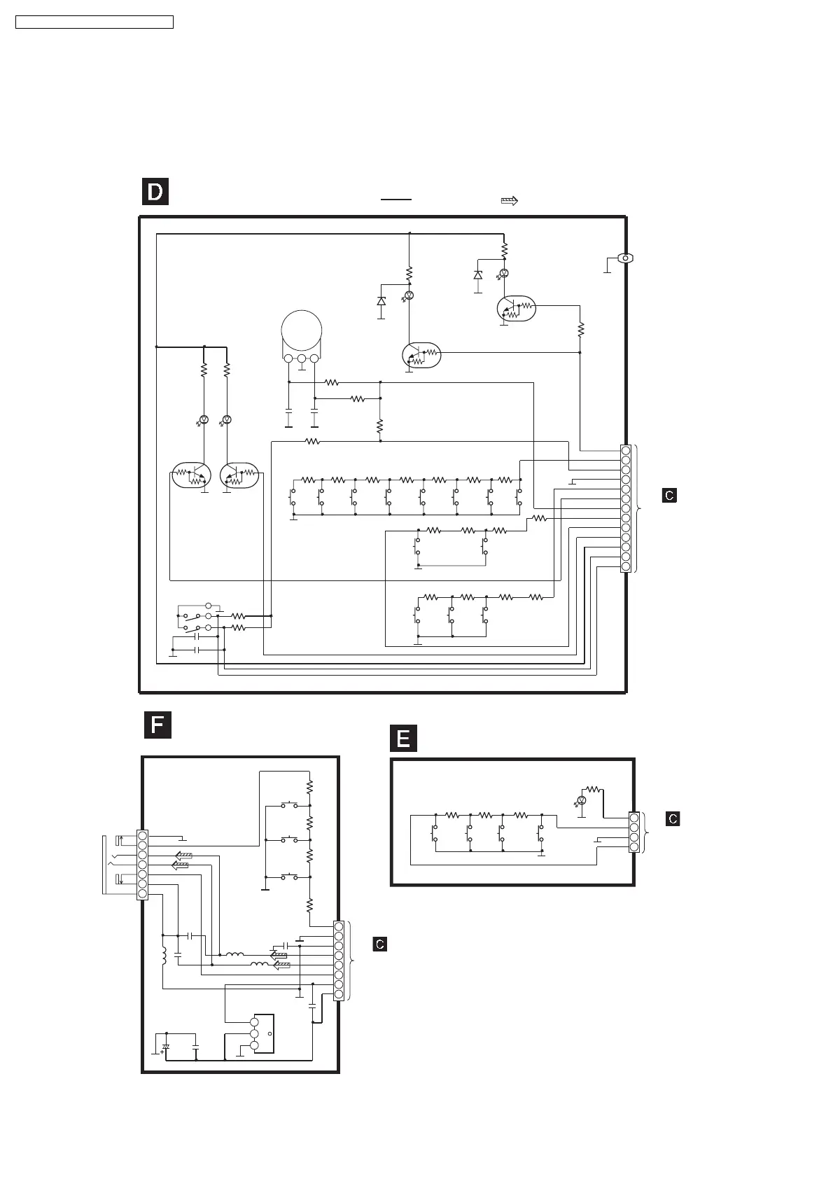
18.3. Panel Circuit, Tact Switch Circuit, Headphone Circuit and Switch
Circuit
2
4
3
1
2
4
6
8
7
5
3
1
123
13
12
11
10
2
4
6
8
9
7
5
3
1
KEY_LED
KEY3
VREF+
GND2
KEY_1
SSEQ_LED
VOL_JOG
TAPE EJECT (KEY2)
REC
RE_LED
+9V
JOG1
JOG2
R606
12K
R605
22K
R604
10K
C612
100P
C611
100P
R629
470
R628
470
D601
LNJ801TPSJA
D602
LNJ801TPSJA
Q600
Q601
Q602
KRC119STA
LED DRIVER
Q603
KRC119STA
LED DRIVER
D612
B3AEA0000041
D614
B3AEA0000041
D615
UDZSTE178R2B
R637
330
D613
UDZSTE178R2B
R627
4.7K
R623
2.7K
R622
2.2K
R621
1.8K
R616
1.2K
R615
1K
R614
1K
R611
2.2K
R610
1.8K
R607
1K
R624
4.7K
R613
2.7K
R612
2.2K
R620
1.8K
S608
TUNER BAND
S607
TAPE
S606
CD
S605
CD5
S604
CD4
S603
CD3
S602
CD2
S601
CD1
S612
PLAY_LIST
S609
ENTER
S623
SSEQ
S622
RE-MASTER
S613
STOP/DEMO
R648
4.7K
R649
4.7K
R619
1.2K
R618
1K
R617
1K
S617
CD_CHECK
S616
AUX
S615
REC
S614
POWER
D609
SLI325URCT31
R636
4.7K
SYS6V
KEY1
GND2
KEY1_1
H601B/JW601
Q600,Q601
KRC119STA
SWITCH
R638
330
VR601
K9AA012A0005
H605B/
JW605
C609
0.01
C608
6.3V47
Z601
B3MAZ0000027
C610
1000P
R625
6.8K
R639
4.7K
R640
2.7K
R626
2.2K
S620
CD_CHANGE
S621
OPEN/CLOSE
S619
RETURN
2
4
6
7
5
3
1
C605
0.022
C604
0.022
L602
10uH
C603
1000P
L601
100uH
L600
100uH
JK600
HEADPHONE
H604/
JW604
REC
GND2
HP_GND
HP_L
HP_R
HP_SW
RMT
VDD
3
2
1
C632 100P
C631 100P
VR600
EVEJ1F42124B
VOLUME JOG
TO
PANEL CIRCUIT
(H601A) ON
SCHEMATIC
DIAGRAM-8
TO
PANEL CIRCUIT
(H605A) ON
SCHEMATIC
DIAGRAM-8
TO
PANEL CIRCUIT
(CN604) ON
SCHEMATIC
DIAGRAM-8
G
VDD
O
3
2
1
: +B SIGNAL LINE
: MAIN SIGNAL LINE
WA601
WA624
WA600
TACT SWITCH CIRCUIT
SWITCH CIRCUIT
HEADPHONE CIRCUIT
SCHEMATIC DIAGRAM-7
E600
76
SA-PM29E / SA-PM29EB / SA-PM29EG

Related product manuals