EasyManua.ls Logo

Panasonic SC-PT960 - Speaker Installation Options

Panasonic SC-PT960
44 pages
Print Icon
To Next Page IconTo Next Page
To Next Page IconTo Next Page
To Previous Page IconTo Previous Page
To Previous Page IconTo Previous Page
Loading...
7
Simple Setup
Positioning
RQTX0105
If irregular coloring occurs on your TV
The center speaker is designed to be used close to a TV, but the picture
may be affected with some TVs and setup combinations.
If this occurs, turn the TV off for about 30 minutes.
The demagnetizing function of the TV should correct the problem. If it
persists, move the speakers further away from the TV.
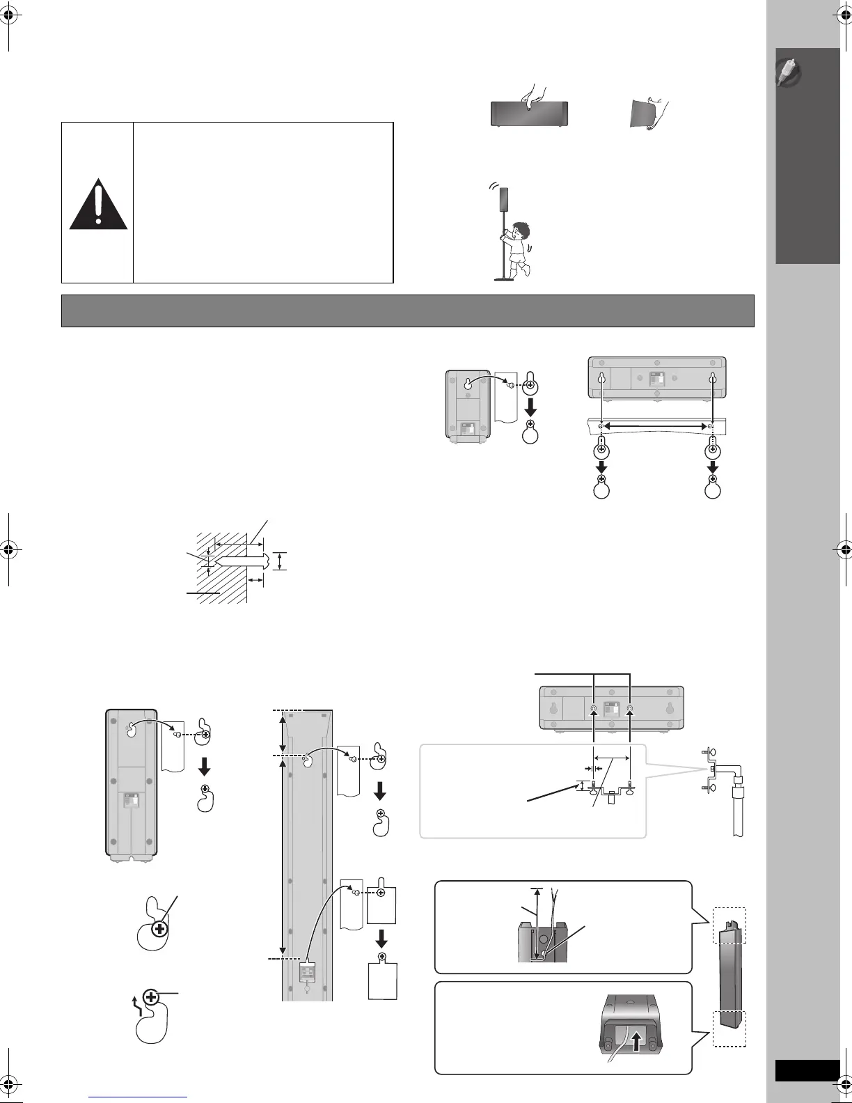
Caution
Do not touch the front netted area of the speakers. Hold by the sides.
e.g. Center speaker
Do not stand on the base. Be cautious when children are near.
e.g. [PT760] [PT954] Front speaker
Attaching to a wall
You can attach all of the speakers (except subwoofer) to a wall.
The wall or pillar on which the speakers are to be attached
should be capable of supporting 10 kg (22 Ibs) per screw.
Consult a qualified building contractor when attaching the
speakers to a wall. Improper attachment may result in damage to
the wall and speakers.
When mounting the speaker to a wall, the speaker cables with
the pipes can be removed and used. Untie the knot from the
upper pipe to remove the cable.
1 Drive a screw (not included) into the wall.
2 Fit the speaker securely onto the screw(s) with the hole(s).
Fitting speaker stands (not included)
[PT760]: Center and surround speakers
[PT960] [PT954]: Center speaker
Ensure the stands meet these conditions before purchasing them.
Note the diameter and length of the screws and the distance
between screws as shown in the diagram.
The stands must be able to support over 10 kg (22 Ibs).
The stands must be stable even if the speakers are in a high
position.
e.g. Center speaker
[PT960]
Reattaching the front speaker cable
Caution
The main unit and supplied speakers are to be
used only as indicated in this setup. Failure to
do so may lead to damage to the amplifier and/
or the speakers, and may result in the risk of
fire. Consult a qualified service person if
damage has occurred or if you experience a
sudden change in performance.
Do not attempt to attach these speakers to
walls using methods other than those
described in this manual.
DO
DO
NOT
DO
NOT
Speaker installation options
7.0 mm to 9.4 mm
(
9
/32q to
11
/32q)
4.0 mm to 6.0 mm (
5
/32q to
1
/4q)
Wall or pillar
4.0 mm (
5
/32q)
At least 30 mm (1
3
/16q)
e.g. [PT960]
Front speaker
Attach to a wall without
the base and the stand
e.g.
In this
position, the
speaker will
likely fall if
moved to the
left or right.
Move the
speaker so
that the
screw is in
this position.
DO
DO
NOT
384 mm
(15
1
/8q)
116 mm
(4
4
/7q)
e.g. [PT760] [PT954]
Front speaker
Attach to a wall without
the base and the pipes
Center speakere.g. [PT760]
Surround speaker
190 mm
(7
15
/32q)
Speaker stand
(not included)
Plate thickness plus
7.0 mm to 10 mm
(plus
9
/32q to
13
/32q)
5.0 mm (
3
/16q), pitch 0.8 mm (
1
/32q)
Metal screw holes
For attaching to
speaker stands
60 mm (2
3
/8q)
Insert the cable from
the bottom.
Pull out the cable
through the hole.
Leave about
90 mm (3
17
/32z)
SC-PT760-960P-PC_RQTX0105-P_eng (PX).book Page 7 Thursday, February 28, 2008 3:38 PM

Table of Contents

Related product manuals