EasyManua.ls Logo

Panasonic TH-50PV70L

Panasonic TH-50PV70L
143 pages
To Next Page IconTo Next Page
To Next Page IconTo Next Page
To Previous Page IconTo Previous Page
To Previous Page IconTo Previous Page
Loading...
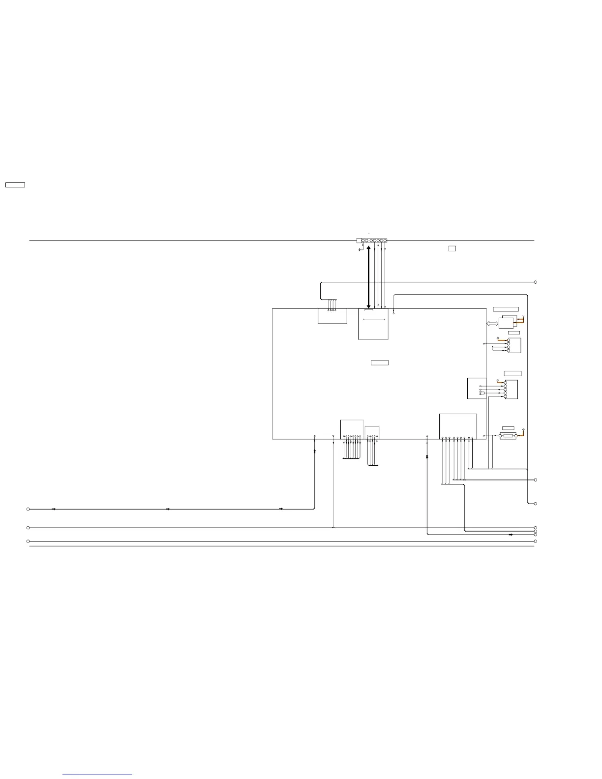
15.16. DG-Board (2 of 3) Block Diagram
AA_XRST
AD_SCL3
AD_SDA3
AD_SDA1
AD_SCL0
AD_SCL3
AD_SDA3
AD_SCL1
AD_SDA0
AD_SDA2
AD_SCL2
AD_TO_GC3FS_NEXT
AD_TMS
AD_TO_BA01
AD_TCK
AD_TRST
SBO2
SBI2
SBO0
SBI0
XIRQ3
VMUTE
VI2P21
VI2P10
AUDCLK
VI2ENB
ADCCK
SLRCK
AG_SD_BOOT_STS
VOUTENB
AG_SW_OFF_DET
CLK74SEL
DTV9V
SUB3.3V
3.3V
SCL1
SDA0
SDA2
SCL0
SDA3
SDA1
SCL2
SCL3
TMS
TDI
TRST
TCK
TDO
VOUTENB
CK27D
CLK74
VC27
CK27
SBO0
SBO2
SBI2
SBI0
XIRQ3
DSRCK
VI2P21
VI2P10
VI2ENB
ADCCK
SLRCK
AUDCLK
ADIN
RMCO
XRST
1
IC5660
RESET
2
PEAKES LITE2 RESET
CLOCK GEN
DDR
IC8002,03
1.8V
74M
CLOCK GENE.
27M
4
9
7
S2
14
VIN
SUB3.3V
IC8004
PEAKS_Lite 2
IC8001
IC8601
EEPROM
8
7
6
5
EEPROM_WP
VCC
WC
SCL
SDA
SDCD
SD CARD SDCMD
SDDTC
SDCLK
SDCMD
SDDAT3
SDAT2
SDCLK
3.3V
SDAT0
SDAT1
SDDAT0
SDWP
SDAT3
W.P.
SD CARD I/F
IIC I/F
LVDS I/F
JTAG
FOR ADV7493
JTAG
SERIAL I/F
HDMI_IRQ
VMUTE
PANEL_STATUS
PANEL_SOS
RSV4
RSV1(SD_ERROR)
RSV2(SDRAMCHK2)
RSV3(SDRAM_CHK1)
COMMON PORT .etc
SDBOOT
ETHER_IRQ
I2C
I2C
VDD
14
15
13
17
16
11
12
1
2
4
DG
DIGITAL SIGNAL PROCESSOR
512
DG
52
13
GS52
7811
TH-50PV70L
DG-Board (2 of 3) Block Diagram
TH-50PV70L
DG-Board (2 of 3) Block Diagram
TH-50PV70L
76

Related product manuals