EasyManua.ls Logo

Panasonic TH-C42FD18 - SS-Board (2;2) Schematic Diagram

Panasonic TH-C42FD18
138 pages
Print Icon
To Next Page IconTo Next Page
To Next Page IconTo Next Page
To Previous Page IconTo Previous Page
To Previous Page IconTo Previous Page
Loading...
80
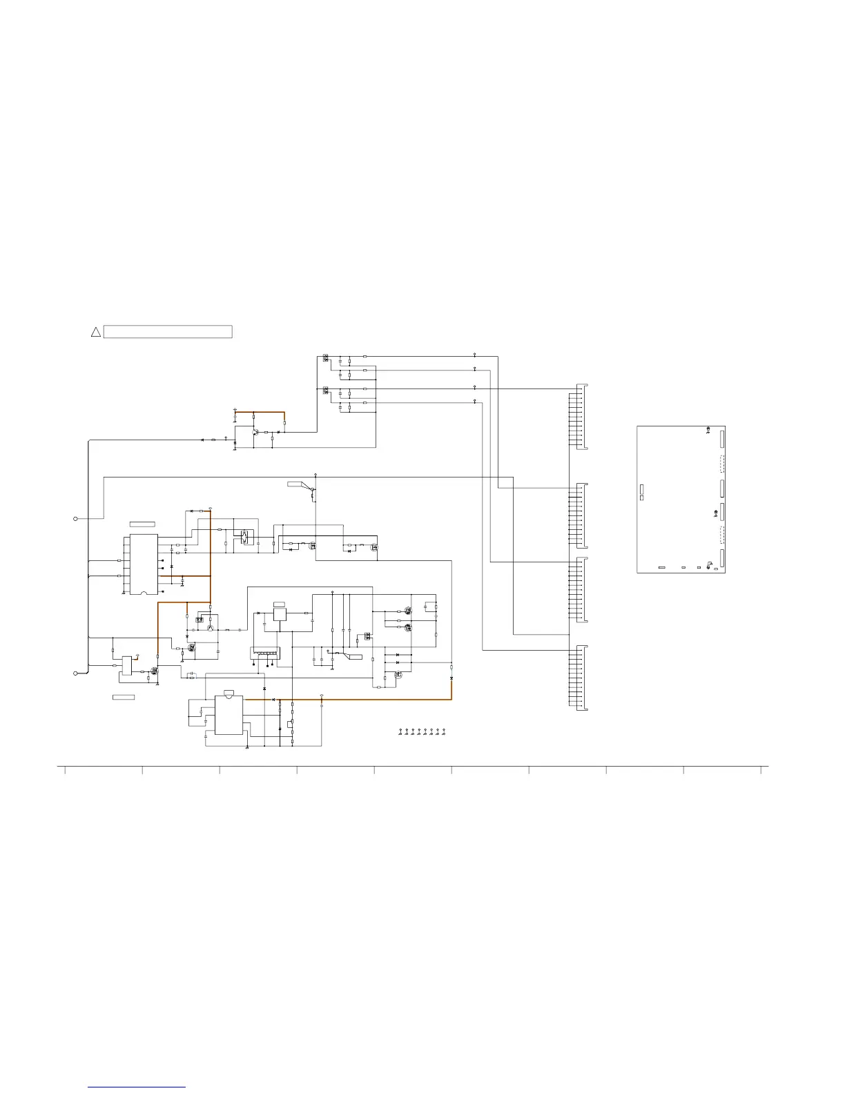
11.40. SS-Board (2/2) Schematic Diagram
+
+
+
+
+
+
TERM
SIDE
TERM
SIDE
TERM
SIDE
TERM
SIDE
AA_UEH
AA_UML
AA_SOS8
AA_UEH
AA_NUEL
C16197
25V
4.7u
C16192
25V
4.7u
C16195
25V
4.7u
C16194
25V
4.7u
C16321
0.22u
250V
C16325
25V
4.7u
C16313
16V
1u
C16312
50V
4700p
C16311
10V
1u
C16322
0.22u
250V
C16326
25V
4.7u
C16327
250V
2.2u
C16337
50V
0.1u
C16336
50V
1000p
C16286
0.1u
50V
C16287
0.1u
50V
C16284
0.1u
50V
C16285
0.1u
50V
C16302
470p
50V
C16329
220u
200V
C16328
220u
200V
C16301
47u
25V
C16323
25V
47u
C16324
470u
25V
C16310
250V
220u
D16300
B0ECKP000047
D16313
B0ECKP000047
D16280
MA2J11100L
D16104
MA22D3900L
D16192
B0ECKP000047
D16102
MA22D3900L
D16321
B0ECKP000047
D16191
B0ECKP000047
D16335
B0ECLM000006
D16336
B0ECLM000006
D16302
MA2J11100L
D16331
B0ECHP000003
D16284
MA3X152D0L
D16285
MA3X152D0L
D16324
MA3X152D0L
D16301
MA3X152E0L
D16281
MAZ80510LL
D16311
MAZ81500ML
D16282
MAZ80680ML
C0JBAC000363
IC16303
1
IN_B
2
IN_A
3
GND
5
VCC
4
OUT
C0ZBZ0000895
IC16191
1
LO
2
GND
3
VCC
4
NC
5
NC
6
VS
7
VB
8
HO
9
NC
10
NC
11
NC
12
HIN
13
NC
14
LIN
15
GND
16
NC
MIP9L02MBS
IC16301
1
SOURCE
2
BY
3
FB
5
VCC
6
GND
7
V01
8
VOUT
10
DRAIN
C0CBALC00012
IC16302
Vin3
2
Com
Vout
1
SS64
1
2
3
4
5
6
7
8
9
10
11
12
13
SS61
1
2
3
4
5
6
7
8
9
10
11
12
13
SS63
1
2
3
4
5
6
7
8
9
10
11
12
13
SS66
1
2
3
4
5
6
7
8
9
10
11
12
13
L16221
G0ZZ00002183
L16103
G0ZZ00002183
J0JJC0000015
L16104
J0JJC0000015
L16102
J0JHC0000031
L16301
T16301A
ETS19AB249AC
1
NC
2
P1
4
PT
5
NC
6
P2
7
S1
10
S2
15V
5V
15V
VSUS
TP29TP25 TP31
TP35
TP26
TP36
TP30TP28TP24
TP54
TP53
TP51
TP42
TP43
TP56
TP27
Q16335
B1CERL000012
G
D
S
Q16301
B1CBGD000001
Q16302
B1CFNG000001
Q16331
B1CERL000012
G
D
S
Q16339
2SK399500L
G
D
S
Q16102
2SK399800L
G
D
S
Q16104
2SK399800L
G
D
S
Q16280
2SD0601A0L
Q16304
2SB0709ASL
Q16191
B1HFPFA00001
R16194
1
R16305
270
R16289
62k
R16300
1k
R16340
1.5k
R16295
62k
R16324
10k
R16333
330k
R16284
220k
R16309
4.7k
R16109
10
R16315
1.24k
R16307
100
R16191
100
R16334
100
R16314
66.5k
R16302
1M
R16310
5.6k
R16304
680
R16339
330k
R16325
0
R16311
120k
R16338
100
R16303
100
R16280
2.2k
R16317
0
R16306
100
R16281
10k
R16293
62k
R16110
47k
R16312
120k
R16322
560
R16321
47k
R16116
47k
R16323
22k
R16102
220
75
R16193 R16104
220
R16301
4.7k
R16308
100
R16290
330k
R16292
330k
R16296
330k
R16294
330k
R16331
100
R16283
47k
R16282
220
R16195
1
R16192
100
R16336
1
R16313
64.9k
R16291
62k
VR16000
50k
1
2
3
C16280
25V
1u
ZA16001
K4CD01000011
ZA16002
K4CD01000011
ZA16003
K4CD01000011
TPSS1
FPC es SOS
SS61
SS21
SS62
SS63
SS64
SS65
SS66
SS34SS35 SS33
SS12
SS11
TPVe
1613 181714121110 15
DRIVER
VE Gen.
FET DRIVER
SUSTAIN
ELECTRODE
PANEL
PANEL
ELECTRODE
SUSTAIN
SUSTAIN
ELECTRODE
PANEL
PANEL
ELECTRODE
SUSTAIN
IPD
NAND GATE
+15V
!
SS-BOARD TXNSS1RLTU (2/2)
1
2
Ve:157V
TH-C42FD18
SS-Board (2/2) Schematic Diagram
TH-C42FD18
SS-Board (2/2) Schematic Diagram

Table of Contents

Related product manuals