EasyManua.ls Logo

Panasonic U-14MF2E8 - Page 64

Panasonic U-14MF2E8
180 pages
Print Icon
To Next Page IconTo Next Page
To Next Page IconTo Next Page
To Previous Page IconTo Previous Page
To Previous Page IconTo Previous Page
Loading...
64
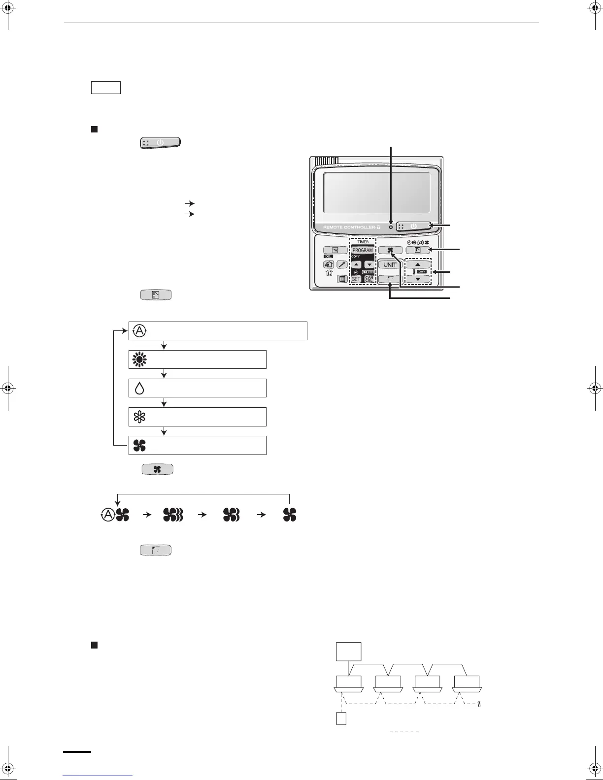
Unità di telecomando del timer (Componenti opzionali)
NOTA
(Tipo cablato: disponibile per tutte le unità interne)
1
2
5
3
4
Nomi e operazioni
Controllo di gruppo
5.
Indicatore luminoso di funzionamento
Unità di telecomando
Linea del segnale
Unità esterna
3. Tasto (velocità ventola)
Modifica della velocità della ventola.
4.
Tasto (Oscillazione/direzione aria)
1.
Tasto (Start/Stop)
Indicatore luminoso di
funzionamento:
All’avvio si illumina
All’arresto si spegne
2.
Tasto (selezione modalità)
Premere questo tasto per selezionare una modalità operativa.
...
AUTO
FORTE
MEDIA
DEBOLE
Per i dettagli, consultare le Istruzioni per l’uso allegate al unità di telecomando del timer
opzionale.
Premendo questo tasto si avvia l’unità, e
premendolo di nuovo la si arresta.
Indicatore luminoso di funzionamento
L’indicatore luminoso si accende quando un
condizionatore d’aria è in funzione.
Questo indicatore luminoso lampeggia
quando si verifica un errore, o quando viene
attivato un dispositivo di protezione.
RAFFREDDAMENTO-RISCALDAMENTO AUTO
RISCALDAMENTO
DEUMIDIFICAZIONE
RAFFREDDAMENTO
FAN
La modalità di raffreddamento-riscaldamento
automatica rileva la differenza tra la
temperatura preimpostata sul telecomando e
la temperatura effettiva della stanza.
Quindi, seleziona automaticamente la
modalità di riscaldamento o di
raffreddamento.
(È possibile eseguire il controllo automatico
del riscaldamento e del raffreddamento per i
sistemi a 2WAY e mini VRF, quando tutte le
unità interne nello stesso circuito
refrigerante vengono controllate in un
controllo di gruppo.)
NOTA:
Quando il tasto di selezione della modalità è
impostato su FAN, non è possibile
selezionare la modalità AUTO.
Premere il tasto di Oscillazione/direzione del flusso dell’aria per impostare l’oscillazione
automatica o una direzione dell’aria su un’angolazione specifica (per i dettagli, vedere la
sezione “Regolazione della direzione del getto d’aria”).
La funzione di controllo di gruppo è adatta per
controllare più condizionatori d’aria in una singola
stanza di grandi dimensioni.
È possibile collegare fino a 8 unità.
Funzionamento di tutte le unità interne nella stessa
modalità, eccettuata la direzione del flusso dell’aria.
Utilizza il sensore di temperatura dell’unità interna.
Tasti di impostazione della temperatura
Modifica dell’impostazione della temperatura.
Premere i pulsanti di impostazione della temperatura per cambiare l’impostazione desiderata
della temperatura.
ad es., Telecomando del timer
05_F569612_IT.fm Page 64 Wednesday, September 24, 2014 9:48 AM

Table of Contents

Other manuals for Panasonic U-14MF2E8

Related product manuals