EasyManua.ls Logo

Paso T3015DMA - Priority Attenuator Setup and Operation; Automatic VOX Relay Functionality; 24 V DC Power for Priority Attenuators

Paso T3015DMA
32 pages
Print Icon
To Next Page IconTo Next Page
To Next Page IconTo Next Page
To Previous Page IconTo Previous Page
To Previous Page IconTo Previous Page
Loading...
PROFESSIONAL AUDIO & SOUND
®
TM
DIGITAL MUSIC SERIES
DIGITAL MUSIC AMPLIFIERS
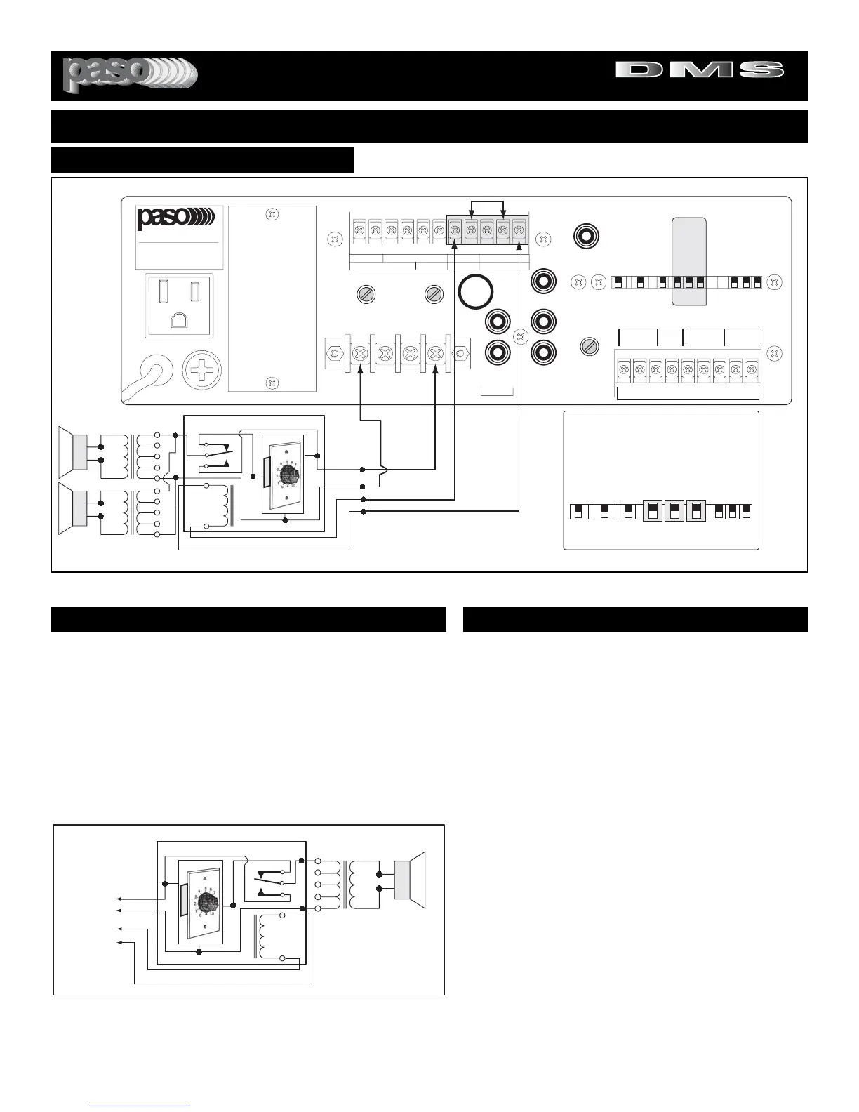
INSTALLATION AND WIRING
PAGE 24
SPECIFICATIONS ARE SUBJECT TO CHANGE WITHOUT NOTICE T3015/3030DMA
USING PRIORITY ATTENUATORS
MOH OUTPUT
3015B spkout07
NC
NO
C+
-
000
RELAY
VOX
24V DC
100 mA
1 WATT
ZONE 2
ZONE 1
1 VOLT
8
OHM
8
OHM
600
OHM
(MIX BUSS)
EQ LINK
PREAMP
OUT
POWER
IN
L
I
N
P
U
T
1
TEL Prog
CD Off
Off Off
MIC MIC
I
N
P
U
T
2
I
N
P
U
T
3
I
N
P
U
T
1
I
N
P
U
T
2
I
N
P
U
T
2
Z
O
N
E
1
Z
O
N
E
2
E
Q
L
I
N
K
Off
Vox
On
Mute
On
Vox
On
Aux
INPUT
3
INPUT
2
On
INPUT 2
INPUT 1
RVC
MIC/PROG MIC/TEL
REM
BALANCED VOLUMEBALANCEDMUTE
MUTE REMOTE
VOL
HOTGCOM COMGHOT
ATTENUATOR
INPUT 2
PROG
RR
L
INPUT 3 INPUT 2
PROGRAM
UNBALANCED
AUX/CD
ZONE 2
LEVEL
ZONE 1
LEVEL
70V25V80
PORT ACCEPTS
STANDARD
MODULE
CAUTION: REMOVE
POWER CORD FROM AC
OUTLET PRIOR TO
INSTALLING MODULE
LINE FUSE 1.6 A 250V
UNSWITCHED 117V 500W MAX.
DIGITAL MUSIC AMPLIFIER
T3015DMA
Power Output 15 W RMS
Supply Voltage 117V 60 Hz
Power Consumption 76 VA
LISTED
COMMERCIAL
AUDIO
EQUIPMENT
30TJ
CUS
®
L
U
®
PRIORITY ATTENUATOR
Atte
n
u
ator
Re
lay
COMMON
70 VOLT IN
24 V DC
OFF
ON
IN
OUT
70 Volt
Transformer
70 Volt
Transformer
70 VOLT SPEAKER
70 VOLT SPEAKER
Bridge + to C
Switch Settings
I
N
P
U
T
1
TEL Prog
CD Off
Off Off
MIC MIC
I
N
P
U
T
2
I
N
P
U
T
3
I
N
P
U
T
1
I
N
P
U
T
2
I
N
P
U
T
2
Z
O
N
E
1
Z
O
N
E
2
E
Q
L
I
N
K
Off
Vox
On
Mute
On
Vox
On
Aux
INPUT
3
INPUT
2
On
Switchset 09
Fig. 24 - Priority Attenuator Connection Diagram
USING PRIORITY ATTENUATORS
AUTOMATIC VOX RELAY
The Amplifier is equipped with a VOX RELAY providing NORMALLY
OPEN and NORMALLY CLOSED Contacts (SPDT SWITCH). Each
time the VOX is activated by Paging from INPUT 1 (set as MIC or TEL)
or by Paging from INPUT 2 (set as MIC) or a PROGRAM from INPUT
2 (set as PROG) the VOX RELAY Terminals C and NO are closed.
24 V DC REGULATED POWER SUPPLY
The Amplifier provides a 24 V - 100 mA DC Output that can be used to
power the Priority Attenuators.Typically the Attenuator will require 24 V
- 10 mA DC Power. Up to 10 Attenuators may be used per installation.
VOX RELAY
PRIORITY ATTENUATORS
In applications requiring that the PAGING Output is at a high-
er Level than the MUSIC PROGRAM Output Level a PRIOR-
ITY ATTENUATOR is required. For this purpose the Amplifier
is equipped with a VOX RELAY and a 24 V DC REGULATED
POWER SUPPLY to operate the Priority Attenuator.
OPERATION
Each time the VOX is activated by Paging from INPUT 1 or
INPUT 2 the VOX RELAY will actuate the PRIORITY ATTEN-
UATOR RELAY and bypass the Attenuator setting. When the
Paging is terminated the VOX turns off the Attenuator Relay
and the Music Level returns to the selected Attenuator setting.
WIRING
1) ATTENUATOR - Connect the COMMON Wire (Black) to
the
0 of the Amplifier Speaker Output and the INPUT Wire
(Red) to the
70 VOLT Terminal. Connect one wire of the
RELAY (White) to the MINUS (-) of the 24 Volt Power Supply
Terminal and the other RELAY Wire (Blue) to the
NO Terminal
of the VOX RELAY on the Amplifier.
2) AMPLIFIER - Bridge Terminals
(+) and C as shown on the
Diagram in Fig. 24.
CABLE REQUIREMENT
Two conductors for the Audio and two conductors for the
Relay. Use AWG18 Wire.
spk 1
70 Volt
Transformer
3015B Prioratten
TO AMP
OUTPUT
TO RELAY
POWER
PRIORITY ATTENUATOR
Attenuato
r
R
el
ay
EXTERNAL SPEAKER
COMMON
70 VOLT
0
24 V DC
OFF
ON
IN
OUT
Fig. 24B - Priority Attenuator Wiring Diagram

Related product manuals