EasyManua.ls Logo

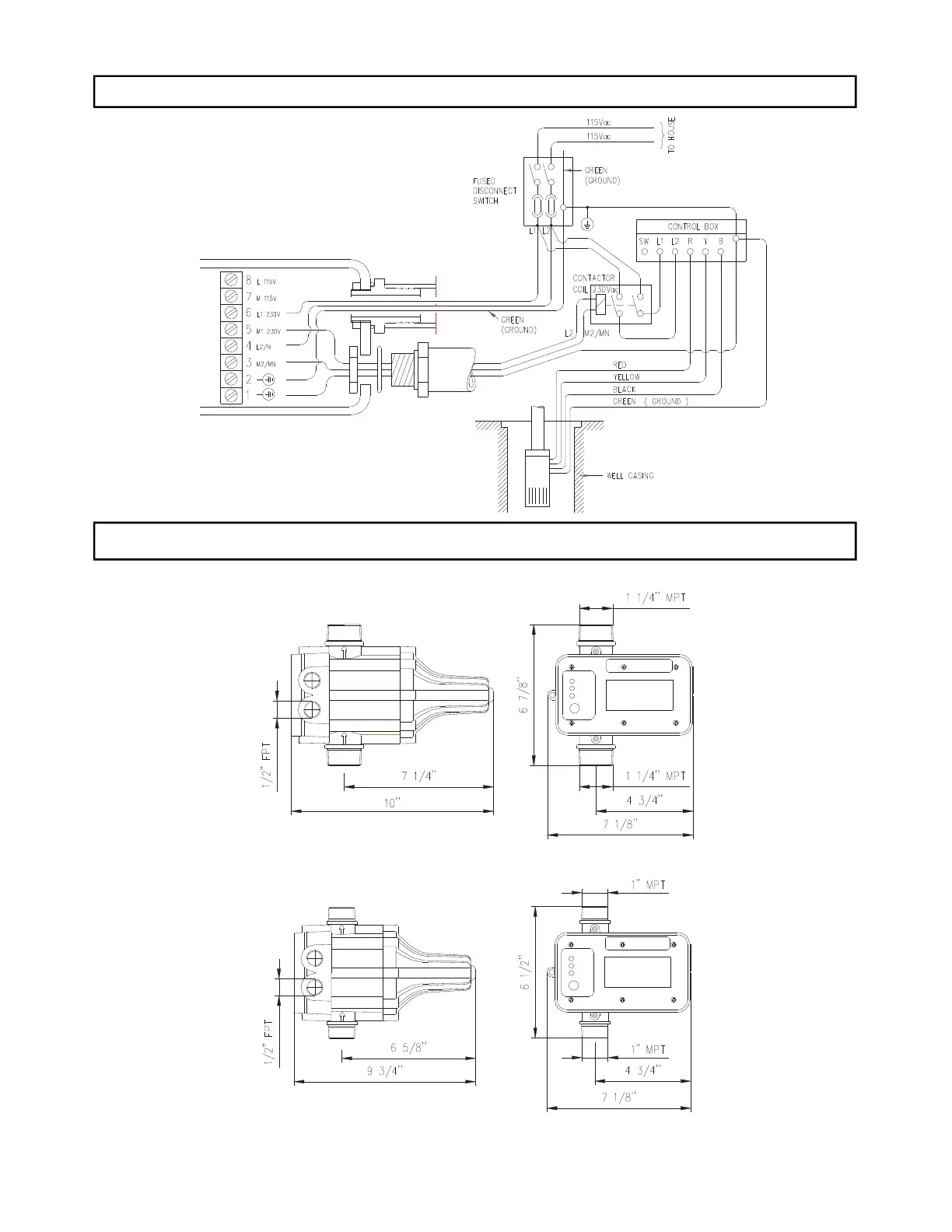
Pearl PCBC16F16S - Installation Wiring Diagram - 230 VAC 3-Wire Pumps Exceedings 20 FLA; Overall Dimensions

Pearl PCBC16F16S
16 pages
Print Icon
To Next Page IconTo Next Page
To Next Page IconTo Next Page
To Previous Page IconTo Previous Page
To Previous Page IconTo Previous Page
Loading...
OVERALL DIMENSIONS
- 13 -
INSTALLATION WIRING DIAGRAM - 230VAC 3-WIRE PUMPS EXCEEDING 20 FLA

Related product manuals