EasyManua.ls Logo

Pentair Pool Products Compool - Compool;Easytouch Upgrade Circuit Board Wiring Diagram

Pentair Pool Products Compool
88 pages
Print Icon
To Next Page IconTo Next Page
To Next Page IconTo Next Page
To Previous Page IconTo Previous Page
To Previous Page IconTo Previous Page
Loading...
76
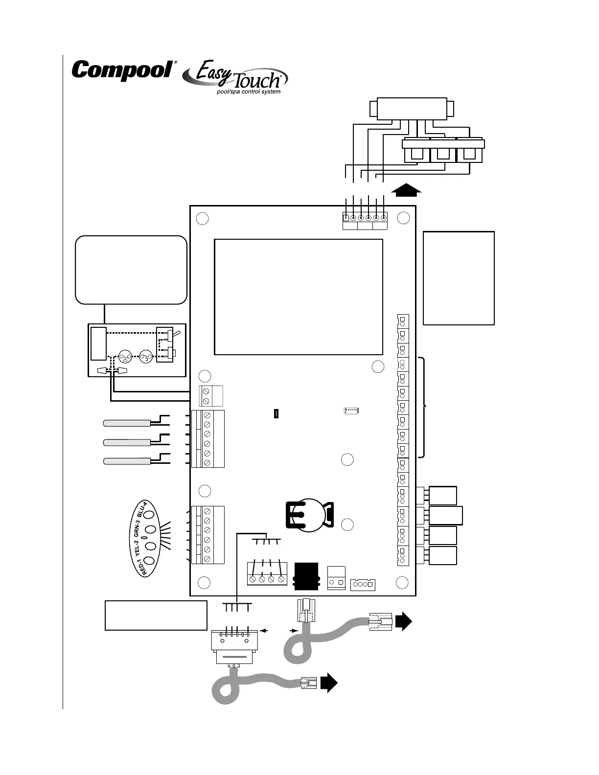
Compool/EasyTouch Pool and Spa Control System Upgrade Installation and User’s Guide
Compool/EasyTouch Upgrade Circuit board Wiring Diagram
10K OHM THERMISTOR SENSORS
(Red/Blk wires are interchangeable)
to CONTROL PANEL
or iS10
to CONTROL PANEL
or iS10
WIRING DIAGRAM
SENSORS
AIR SOLAR
TRANSFORMER
CONNECTIONS
18VAC10VAC 24VAC
RED
BLU
RED/WH
ORG
ORG/WH
BLU/WH
PCB Assy #521099
MODTELSPAEXT CTRL
2-SPD SOLAR EHTR AUX7 AUX6 AUX5 AUX4 AUX3 AUX2 AUX1 PUMP SPA VLV B VLV A RETURN INTAKE
COM PORT
BLK
GRN
YEL
RED
HEATER
RED
BLK
AIR SENSOR
WATER SENSOR
RED
BLK
RED
BLK
SOLAR SENSOR
J19
J24
J23
J2J3J4J5J7J8J9J10J11
J6
J25
[See Important Note]
J12J13J14J15J16J17J18
J21
J22
AUXILIARY RELAYS (1-7)
POOL HEATER
CONTROL
GAS VALVE
PRESSURE
THERMOSTAT
LIMIT
OFF
ON
UPGRADE
WATER
IS4 REMOTE
3G4B ORG BLK2Y 1R
J20
TRANSFORMER
FACTORY WIRING
OUTPUT: 10
VAC 18VAC 24VAC
LOW VOLTAGE CIRCUIT BREAKERS
BLK
ORG
RED
YEL
GRN
BLU
COM PORT
RJ12 Adapter
for Compool
®
/EasyTouch
®
Indoor Control Panel
or iS10 for Cp3800 family
RED
GRN
YEL
BLK
YEL
RED
GRN
BLK
10V 18V 24V
TO GAS HEATER TERMINALS FOR
REMOTE CONTROL OPERATION, OR
TO FIREMAN'S SWITCH CONNECTION.
CAUTION:
DO NOT BYPASS INTERNAL HEATER
THERMOSTAT, HIGH LIMIT SWITCH,
OR OTHER SAFETY DEVICES.
COM PORT: EasyTouch
®
Indoor Control Panel,
RF Transceiver, iS4, iS10 Spa side Remote,
IntelliFlo
®
VF IntelliFlo
®
VS, QuickTouch
®
and CP/ET RJ12 Adapter for Indoor Control Panel.
IMPORTANT NOTE:
J25 Jumper is Factory
set on both pins.
For Single Body Systems,
the Jumper only needs to
be attached on 1 pin.
For Shared Equipment
Systems, the Jumper
needs to be attached
on both pins.
INTAKE
VALVE
ACTUATOR
RETURN
VALVE
ACTUATOR
AUX VALVE A
or SOLAR
ACTUATOR
AUX
VALVE B
ACTUATOR
and/or
BLU
BLU

Table of Contents

Related product manuals