EasyManua.ls Logo

Pentair Pool Products Compool - Compool 3810 Circuit Board Wiring Diagram

Pentair Pool Products Compool
88 pages
Print Icon
To Next Page IconTo Next Page
To Next Page IconTo Next Page
To Previous Page IconTo Previous Page
To Previous Page IconTo Previous Page
Loading...
77
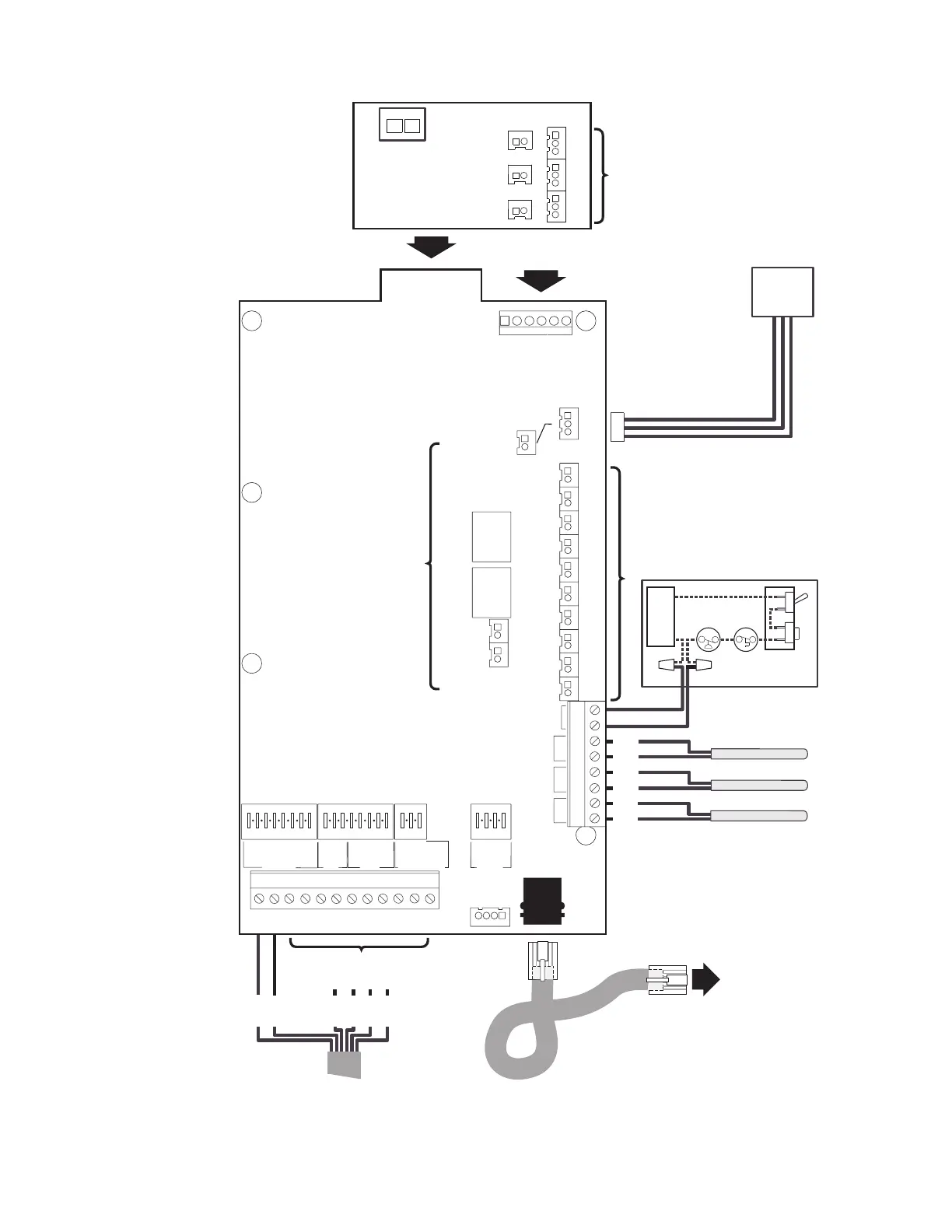
Compool/EasyTouch Pool and Spa Control System Upgrade Installation and Users Guide
Compool 3810 Circuit board Wiring Diagram
12
O
N
WATER SENSOR
RED
GRN
RED
GRN
SELECT 4 CIRCUITS
ORG
RED
YEL
GRN
BLU
BLK
Switch 1
Switch 2
Switch 3
Switch 4
BLU
BLU
CONTROL
GAS VALVE
PRESSURE
THERMOSTAT
LIMIT
OFF
ON
FREEZE SENSOR
RED
GRN
SOLAR SENSOR
VLV2
VLV3
VLV1
12345
67
ON
8
12345
67
ON
8
123
ON
1234
ON
V
COMPOOL 11040A
PART# MOD-VLV3
VLV1
WITH
VLV2
VLV2
WITH
VLV3
CAUTION: DO NOT SHORT PINS OF RELAY SOCKETS
RELAY CONNECTIONS
GND
HLMP
HBST
FLTR
REM1
REM2
REM3
REM4
REM5
REM6
TRANSFORMER
CONNECTIONS
AUXILIARY VALVE
ACTUATORS
AUX
VALVE
ACTUATOR
1810 24
PART# PC-LX3810COMPOOL 11099
2SPD
FLTR
AUX1
AUX2
AUX3
AUX4
AUX5
AUX6
AUX
VLV
CNTRL
FREEZE I/L SYST
SPEC FUNCT
HI SPD
CLNR
FDEL
SOLR
HTPMP
MANHT
FLRCL
DIM3
DIM4
B/W
HIGH
HTR
AUX1
SOLR
DIMMER
3
DIMMER
4
FLRCL
CONTROL
JUMPERS
COMBINED VALVES
PHONE
COM PORT
SOLR SENSFRZ SENS
GRN
RED
GRN
RED
GRN
RED
HTR
AUX
VLV
FLTR
AUX1
AUX2
AUX3
AUX4
AUX5
AUX6
B/W
EHTR
SOL
PUMP
WAT SENS
V A LV E MODU LE
(optional)
H EATER
to SP A -S IDE R EMO T E
to CONTROL
PA N E L
Low Voltage Wiring
Power Center Circuit Board

Table of Contents

Related product manuals