EasyManua.ls Logo

Pentair Jung Pumpen BASICLOGO BD 00 E - Page 44

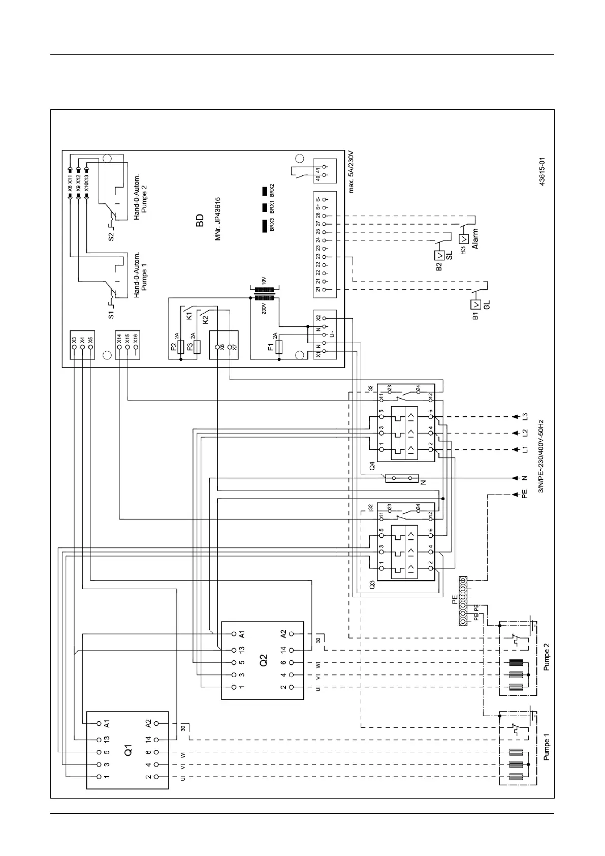
Pentair Jung Pumpen BASICLOGO BD 00 E
48 pages
Go to English
To Next Page IconTo Next Page
To Next Page IconTo Next Page
To Previous Page IconTo Previous Page
To Previous Page IconTo Previous Page
Loading...
GL
SL
Alarm
BD 00 - BD 25 - BD 46 - BD 610 - BD 910
44

Related product manuals