EasyManua.ls Logo

Perry 1TPTE526A - Page 43

Perry 1TPTE526A
Print Icon
To Next Page IconTo Next Page
To Next Page IconTo Next Page
To Previous Page IconTo Previous Page
To Previous Page IconTo Previous Page
Loading...
43
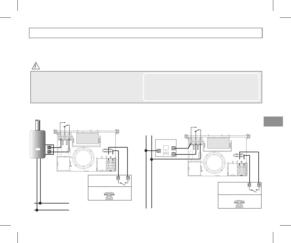
3.4 - RACCORDEMENTS ELECTRIQUES
Raccordement à une chaudière
Raccordement à une vanne motorisée
Couper la tension de réseau 230V~
NF
NF
FR
FR
3 - INSTALLATION
raccorder le dispositif à commander aux bornes :
1 -
2 -
3 -
commun
contact normalement fermé
contact normalement ouvert
230V~
N
L
CHARGE
M
Ouvrir
Fermer
2
67
8 9
NO
3
1
Télécommande Téléphonique
Contact pour la
commande du thermostat
L
N
230V~
678 9
3
Télécommande Téléphonique
Contact pour la
commande du thermostat
2 1
230V~
C
NA
C
il est possible de raccorder une télécommande téléphonique
aux bornes et pour l'activation du thermostat à distance89
(voir exemple sur schéma électrique) et s'en tenir aux
indications citées dans les instructions du programmateur
téléphonique.
Important: l'installation et le raccordement électrique des dispositifs et des appareils doivent être effectués par un personnel qualifié et
conformément aux normes et aux lois en vigueur. Le fabricant décline toute responsabilité en ce qui concerne l'emploi de produits devant
respecter des normes particulières d'environnement et/ou d'installation.
Exemples de raccordements électriques
CHAUDIÈRE