EasyManua.ls Logo

Perry 1TPTE526A - Page 61

Perry 1TPTE526A
Print Icon
To Next Page IconTo Next Page
To Next Page IconTo Next Page
To Previous Page IconTo Previous Page
To Previous Page IconTo Previous Page
Loading...
61
FR
DE
3 - INSTALLATION
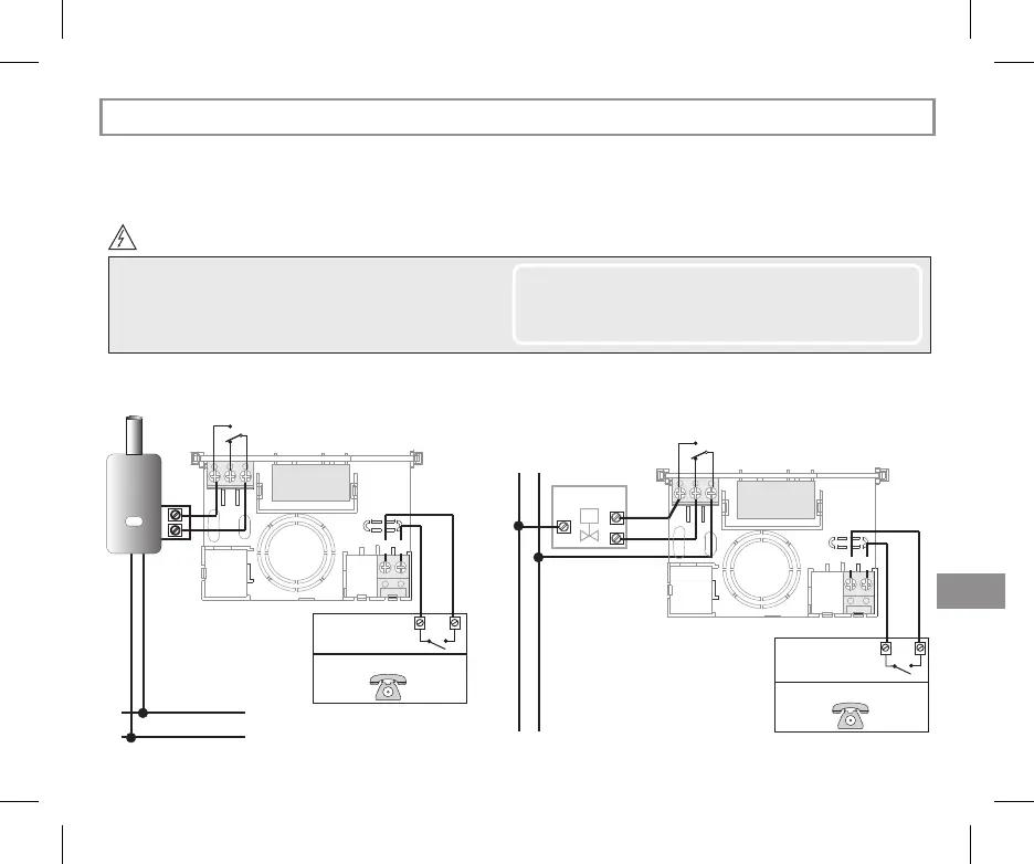
3.4 - ELEKTRISCHE ANSCHLÜSSE
Beispiel für elektrische Anschlüsse
Anschlüsse an einen Durchlauferhitzer
Anschlüsse an ein motorisiertes Ventil
Öffnet
Schließt
NG
Telefonschaltung
Kontakt für die
Thermostat-steuerung
NG
Telefonschaltung
Kontakt für die
Thermostat-steuerung
Die 230V~ Netzspannung unterbrechen
Wichtig: die Installation und der elektrische Anschluss der Vorrichtungen und Geräte müssen durch qualifiziertes Fachpersonal und in Übereinstim-
mung mit den geltenden Vorschriften und gesetzlichen Bestimmungen vorgenommen werden. Der Hersteller übernimmt keine Haftung für die
VerwendungvonProdukten,fürderenEinsatzbestimmteUmgebungsbedingungenbzw.Installationsrichtlinienerfülltseinmüssen.
die zu steuernde Vorrichtung an die Klemmen anschließen:
1 -
2 -
3 -
gemeinsam
Kontakt normalerweise geschlossen
Kontakt normalerweise geöffnet
230V~
N
L
LAST
M
2
67
8 9
NO
3
1
L
N
230V~
678 9
3
2 1
230V~
C
NO
C
An die Klemmen und kann für die Fernbedienung des
Thermostats eine Telefonschaltung angeschlossen werden
89
(siehe Beispiel im Schaltplan) an die Anweisungen in der
Anleitung der Telefonschaltung halten.
DURCH-
LAUFER-
HITZER
DURCH-
LAUFER-
HITZER