EasyManua.ls Logo

Perry 1TPTE526A - Page 7

Perry 1TPTE526A
Print Icon
To Next Page IconTo Next Page
To Next Page IconTo Next Page
To Previous Page IconTo Previous Page
To Previous Page IconTo Previous Page
Loading...
7
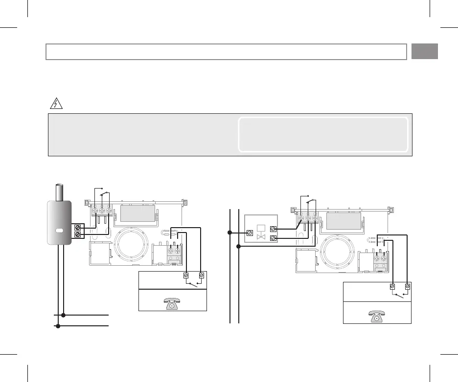
3 - INSTALLAZIONE
3.4 - COLLEGAMENTI ELETTRICI
collegare il dispositivo da comandare ai morsetti:
1 - comune
2 -
3 -
contatto normalmente chiuso
contatto normalmente aperto
Esempi di collegamenti elettrici
Importante: l’installazione ed il collegamento elettrico dei dispositivi ed apparecchiature devono essere eseguiti da personale qualificato ed
in conformità alle norme e leggi vigenti. Il costruttore non si assume alcuna responsabilità per quanto concerne l’impiego di prodotti che
debbano seguire particolari norme di ambiente e/o installazione.
Collegamento ad una caldaia
Collegamento ad una valvola motorizzata
230V~
N
L
CARICO
M
apre
chiude
2
67
8 9
NA
NC
CALDAIA
3
1
Programmatore Telefonico
Contatto per il comando
del termostato
L
N
230V~
678 9
3
Programmatore Telefonico
contatto per il comando
del termostato
2
230V~
C
NA
NC
C
IT
Disattivare la tensione di rete 230V~ che alimenta i dispositivi da comandare
ai morsetti e è possibile collegare un programmatore
telefonico per l’attivazione del termostato a distanza
89
(vedere esempio in schema elettrico) ed attenersi a quanto
indicato nel foglio istruzioni del programmatore
telefonico.
1

Related product manuals