EasyManua.ls Logo

Perry 1TPTE526A - Page 79

Perry 1TPTE526A
Print Icon
To Next Page IconTo Next Page
To Next Page IconTo Next Page
To Previous Page IconTo Previous Page
To Previous Page IconTo Previous Page
Loading...
3 - INSTALACIÓN
79
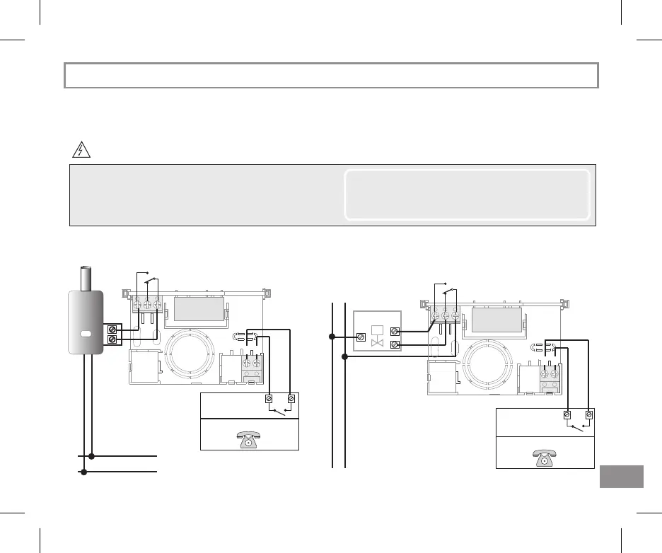
Ejemplo de conexiones eléctricas
Conexión a una caldera
Conexión a una válvula motorizada
Abre
Cierra
Programador Telefónico
Contacto para el mando
del termostato
Programador Telefónico
Contacto para el mando
del termostato
Desactivar la tensión de red de 230V~
ES
conectar el dispositivo a los bornes:
1 -
2 -
3 -
común
contacto normalmente cerrado
contacto normalmente abierto
230V~
N
L
CARGA
M
2
67
8 9
NA
NC
3
1
L
N
230V~
678 9
3
2 1
230V~
C
NA
NC
C
en los bornes e se puede conectar un programador
Telefónico para activar a distancia el termostato
89
(ver
ejemplo en el esquema eléctrico) y seguir lo indicado
sobre las instrucciones del programador telefónico.
3.4 - CONEXIONES ELÉCTRICAS
Importante: la instalación y la conexión eléctrica de los dispositivos y equipos deben ser realizadas por personal calificado, de conformi-
dad con las normas y leyes vigentes. El fabricante no asume responsabilidad alguna por el empleo de productos que deban cumplir con
lo dispuesto por normas especiales relacionadas con el ambiente o la instalación.
CALDERA