EasyManua.ls Logo

Philips 32PFL4508 - WIRING DIAGRAM

Philips 32PFL4508
50 pages
Print Icon
To Next Page IconTo Next Page
To Next Page IconTo Next Page
To Previous Page IconTo Previous Page
To Previous Page IconTo Previous Page
Loading...
PL13.9WI11-1
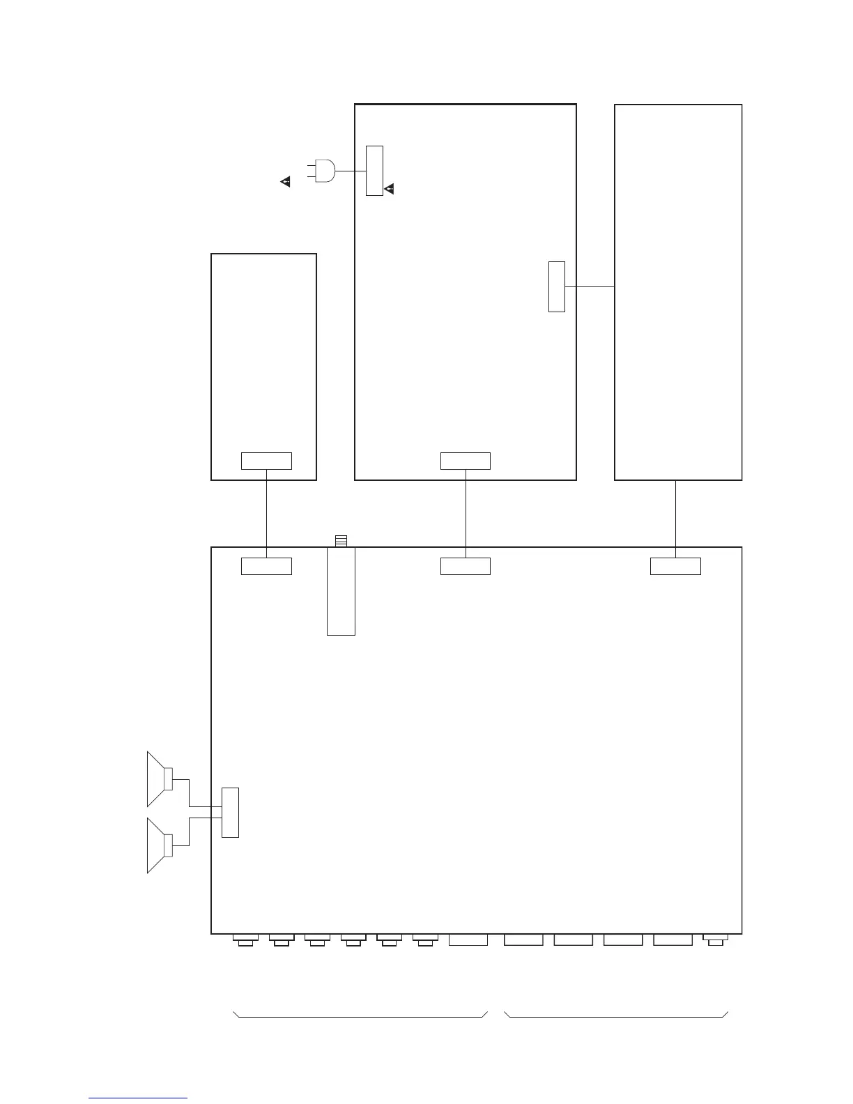
WIRING DIAGRAM
23
1
CN501
1
23
CN3701
1
30
CN3013
9
1
CN4001
1
9
CN3101
17
CN1001
BW
CN601
TUNER UNIT
DIGITAL MAIN CBA UNIT POWER SUPPLY CBA
FUNCTION CBA UNIT
LCD PANEL ASSEMBLY
14
CN3801
AC CORD
COMPONENT
-Y/VIDEO-IN
COMPONENT
-Pb-IN
COMPONENT
-Pr-IN
AUDIO(L)-IN
AUDIO(R)-IN
REAR
DIGITAL
AUDIO-OUT
(COAXIAL)
HDMI-
CONNECTOR-1
HDMI-
CONNECTOR-2
HDMI-
CONNECTOR-3
PC-RGB-IN
USB JACK
SP3801
SPEAKER
L-CH
SP3802
SPEAKER
R-CH
CL3701
CL3006
CL3101
CL3801
SIDE
HEADPHONE
JACK

Related product manuals