EasyManua.ls Logo

Philips 32PFL5615D/7 - Page 53

Philips 32PFL5615D/7
166 pages
Print Icon
To Next Page IconTo Next Page
To Next Page IconTo Next Page
To Previous Page IconTo Previous Page
To Previous Page IconTo Previous Page
Loading...
Circuit Descriptions
EN 53Q552.1L LA 7.
2010-Dec-29
back to
div. table
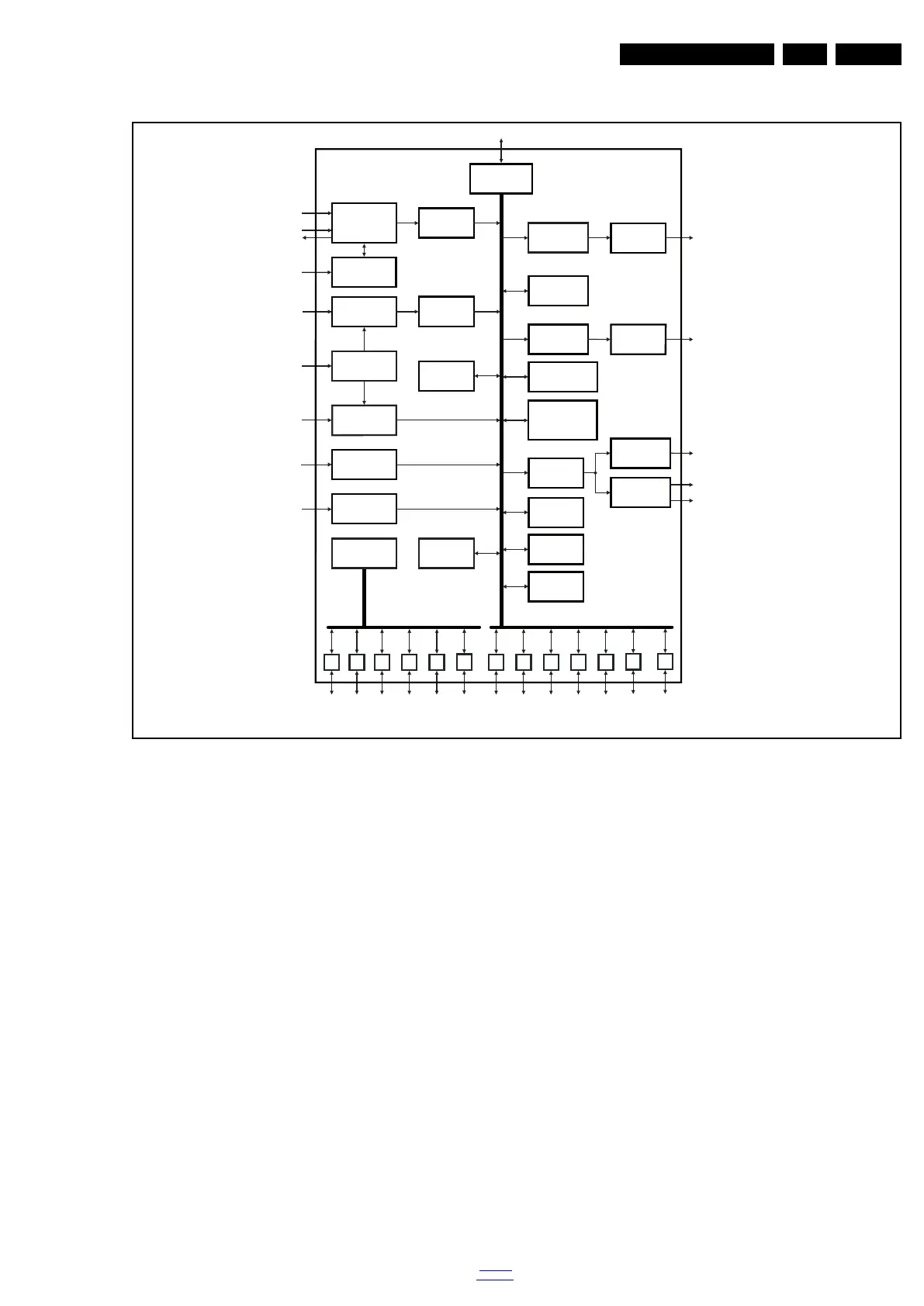
Figure 7-9 PNX85500 functional diagram
18770_241_100201.eps
100219
TS out/in for
TS input
CVBS, Y/C,
LVDS for
analog CVBS
SPDIF
Low-IF
SSIF, LR
HDMI
CI/CA
MPEG
PRIMARY
LVDS
VIDEO
SECONDARY
MEMORY
VIDEO
3D COMB
DIGITAL IF
AUDIO DEMOD
AUDIO IN
HDMI
SCALER,
AUDIO DSP
AUDIO DACS
AUDIO OUT
450 MHz
560 MHz
I
2
C
PWM
GPIO IR ADC UART I
2
C GPIO Flash
analog audio
I
2
S
SPDIF
SYSTEM
USB 2.0
PNX85500x
DVB-T/C
channel decoder
DVB
AV-PIP
SPI
MPEG/H.264
RECEIVER
(8051)
CONTROLLER
AND DECODE
DECODER
PCMCIA
RGB
PROCESSOR
SYSTEM
CONTROLLER
DECODER
VIDEO
24KEf CPU
MIPS32
x 8
AV-DSP
REDUCTION
AND NOISE
DE-INTERLACE
OUTPUT
VIDEO
SUB-PICTURE
ENCODER
OUTPUT
VIDEO
quad channel)
(single, dual or
flat panel display
DRAWING
ENGINE
DMA BLOCK
Motion-accurate
pixel processing
SD
Memory
Card
Ethernet
MAC

Related product manuals