EasyManua.ls Logo

Philips 32PFL5615D/7 - Page 99

Philips 32PFL5615D/7
166 pages
Print Icon
To Next Page IconTo Next Page
To Next Page IconTo Next Page
To Previous Page IconTo Previous Page
To Previous Page IconTo Previous Page
Loading...
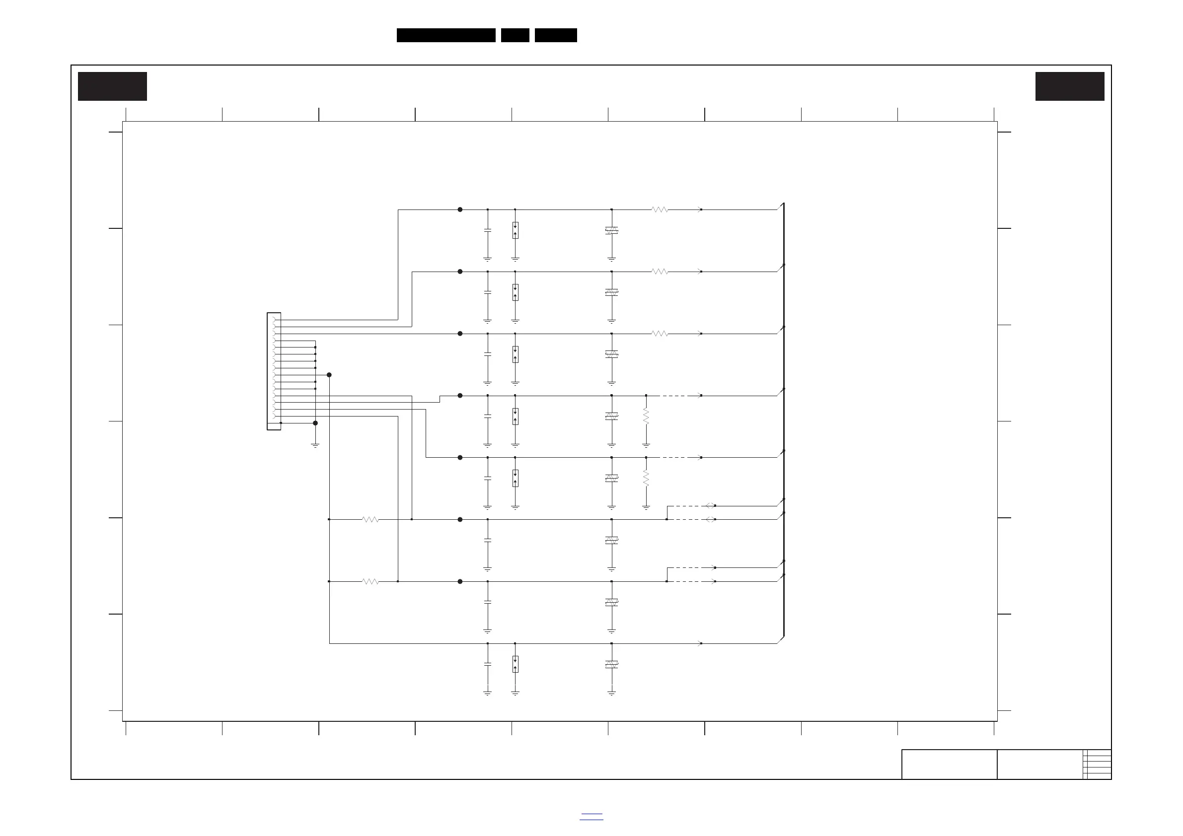
Circuit Diagrams and PWB Layouts
EN 99Q552.1L LA 10.
2010-Dec-29
back to
div. table
VGA
18770_508_100118.eps
100118
VGA
B01I B01I
2009-10-22
3
8204 000 8994
TUNER, HDMI & CI
9FC6 D6
3FC3 C6
C
FFC3 C4
FFC4 C3
FFC6 D2
FFC7 D4
FFC8 D4
6FC2 B5
6FC3 C5
6FC4 C5
3FC7 C6
6FC1 B5
6
FFC5 C4
8
CONNECTOR
FFC1 A4
9FC1 D6
6FC6 E5
6FC7 E5
6FC8 F5
3FC5 A6
E
9FC3 E6
9FC4 E6
9FC5 C6
6FC5 D5
A
C
E
A
B
2FC7 E4
D
3FC1 D3
FFC2 B4
9FC2 E6
VGA
FFC9 E4
5
7
3FC2 E3
9
3FC4 D6
2
3FC6 B6
45 7
2FC5 D4
1FC5 D4
F
9
B
3
D
F
2FC4 C4
8
2FC6 E4
61
1FC6 F4
1E05 B2
4
2
3
1FC1 B4
1FC2 B4
1FC3 C4
1FC4 C4
1
2FC8 F4
2FC1 B4
2FC2 B4
2FC3 C4
9FC5
FFC3
2FC1
100p
2FC2
100p
RES
10K
3FC1
RES
12V
CDS4C12GTA
6FC3
1FC6
RES
3FC2
10K
3FC4
4K7
2FC6
47p
RES
9FC2
1FC1
FFC4
18R
3FC6
FFC1
7
8
9
16
17
11
12
13
14
15
2
3
4
5
6
1216-00D-15S-1EF
1
10
6FC7
CDS4C12GTA
12V
1E05
FFC8
FFC6
12V
CDS4C12GTA
6FC2RES
2FC5
47p
1FC5
6FC4RES
12V
CDS4C12GTA
100p
2FC3
12V
6FC5
CDS4C12GTA
RES
FFC7
47p
2FC4
2FC8
47p
1FC2
RES
9FC4
FFC2
9FC3
9FC6
1FC3
3FC7
18R
12V
CDS4C12GTA
6FC6
4K7
3FC3
47p
2FC7
12V
CDS4C12GTA
6FC8
1FC4
FFC5
12V
CDS4C12GTA
6FC1RES
9FC1
FFC9
3FC5
18R
VGA-SCL-EDID
VGA-SDA-EDID
VGA-SDA-EDID-HDMI
VGA-SCL-EDID-HDMI
+5V-VGA
R-VGA
G-VGA
B-VGA
H-SYNC-VGA
V-SYNC-VGA

Related product manuals