EasyManua.ls Logo

Philips 32PFL7403D/12 - LCD Supply (37 & 42): Part 1

Philips 32PFL7403D/12
152 pages
Print Icon
To Next Page IconTo Next Page
To Next Page IconTo Next Page
To Previous Page IconTo Previous Page
To Previous Page IconTo Previous Page
Loading...
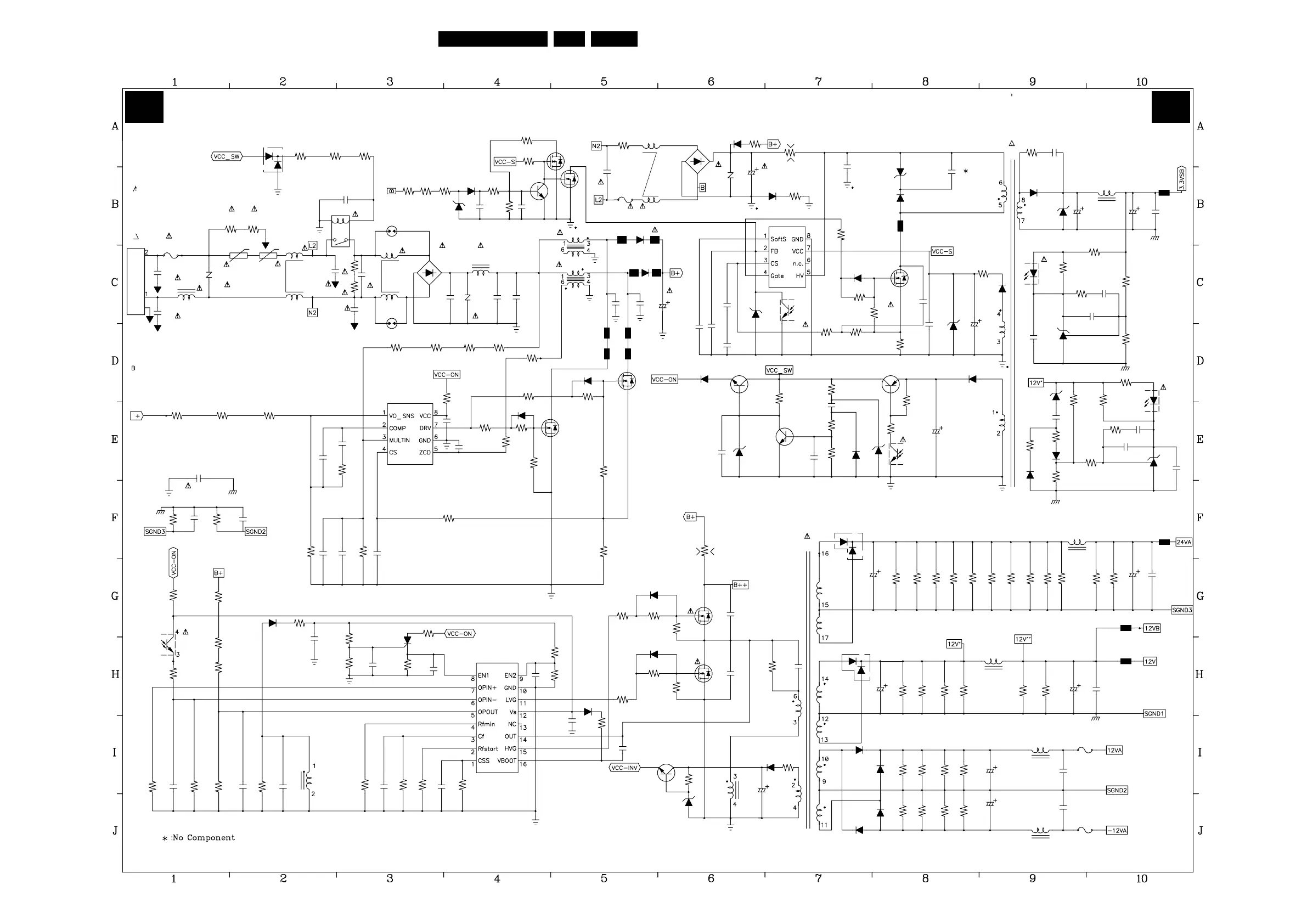
Circuit Diagrams and PWB Layouts
57Q528.2E LB 7.
LCD Supply (37 & 42"): Part 1
R632
200
R633
1K
1/2
D602
BAS316
C610
0.1u
R604
402K/1206
R603
402K/1206
R602
402K/1206
R601
10
PC123
PC601
R819
18.7K
C108
0.1U
C107
0.1U
R101
1K
R102
1K
1.5KP/250V
CY5
R817
15K
*
R818
R812
51.1K/0805
IC801
NCP1606B
100
R815
C807
100p
C805
1.2kp
C806
1kp
C802
C804
0.1u
C803
0.47u
SCR211
P0102BL
R631
511
R629
2K
C611
1Kp
R630
100
C612
1Kp
R628
8.06K
R609
100
C602
1Kp
C603
1KP
C601
1KP
R616
10K
R611
15K
R614
19.6K
1.5M
R612
3.01K
R613
C606
0.47u
R607
25.5K
IC601
DDA001B
C605
2.2u
1/2
CT601
100:1
R608
3.83K
CN1
D716BAV70
R704
75/1206
R703
75/1206
R701
75/1206
CY2
100P/250V
1M/1206
R820 R821
1M/1206
R822
1M/1206
Z1
TVR14681
L802
CR-20-LP2048
T5AH/250V
F1
L
N
PE
CY1
100P/250V
R39
4.7M
R40
4.7M
SCK201R0
NTC1 NTC2
SCK201R0
FL1
HFV- DP722
CX1
0.33u/275V
470P/250V
CY4
R6
1M 1M
R5
FL2
OTC28
2M/1206
R908
DSP-210M
GT1
835-1A-B-C
RL701
C703
1u/0805
R909
2M/1206
C910
1u
ZD905
7.5B
D905
BAS316
R910
2M/1206
R912
1M
R913
402K
BD1
D15XB60
C810
1u/450V
C809
1u/450V
Z2
TVR10511
L801
CR-18-LP3009
*
C801
0.1u
R814
10
R806
750K/0805
R805
750K/0805
R804
750K/0805
750K/0805
R803
CY3
470P/250V
R813
22
GT2
DSP-210M
R809
22
R810
100
R801
100
R808
51.1K/0805
SPA15N60C3
Q802
C808
180u/450V
SPA15N60C3
Q801
FB803
3.5X6
FB804
3.5X6
FB802
3.5X6
FB801
3.5X6
D802
BAS316
D801
BAS316
1u/450V
C811
PQ3220
L800A
Q903
2N7002
Q902
4401
C911
0.01u
L800B PQ3220
MUR460
D803
F2
T1AL/250V
FL4
HFV-CE5085
C813
220P/1KV
C812
220P/1KV
D805
MUR460
R923
100
R926
22
IC901
ICE3AS02
D908
BAS316
Z3
TVR10511
1N4007
D911
C918 220p
R902
06J05
R924
10K
1/2
3
4
PC901
PC123
ZD906
20A
R917
2K/0805
R915
40.2K
R919
1K
C901
0.22u
Q901
4401
D907
BAS316
C903
0.22u
C917
220p
1Kp
C904
R927
1.5K
R928
1
2N7002
Q906
R918
1M
R914
1M
CX2
0.1u/275V
1N4007
D910
C921
0.047u/450V
R901
1 FUSIBLE
C902
33u/450V
R904
1K /1W
BD2
S1NB80
R7
R950
5.1/1206
T901
EF12.6
C950
1KP/1206
C920
ZD908
P6KE300A
5.1K
R905
R906
10K
Q900
4403
C912
47u/63V
EGP10D
D903
FQPF3N80C
Q905
C914
0.1u
ZD902
20A
ZD602
3.3BC956
2.2u
R903
2/1W
ZD951
1N5917B
D950
SB340
R916
5.1/1206
BYV26E
D909
1
2
PC901
PC123
D906
BAV103
FB902
3.5x6
C916
47P/1KV
1/2
R952
2k
R954
2k
C954
0.47u
C953
0.1u
L951
CB-3.0-01
C951
1Ku/10V
C952
1Ku/10V
FB901
3.5X6
R953
10K
R951
750
IC951
APL431 1.25V
R503
3.83K
R511
1K
C505
1U
1/2
C502
0.047u
R506
1K
1
2
PC601
PC123
R510
2K
R955
1.13K
C955
0.1u
R509
5.11K
D605
STTH1R06
18A
ZD601
Q601
4401
R624
2K/0805
R626
15
C608
1u/0805
0.47u
C609
R623
100/0805
BAV103
D606
SB560
D204
1/2
C614
100u/50v
D201
SB560
100:1
CT601
R621
15
R618
15
R627
51.1k
C607
0.1u
R615
121K
R619
10K
R617
100
R622
10K
R620
100
Q602
2SK3569
D604
BAS316
D603
BAS316
R811
10K
R634
0.1 FUSIBLE
R816
0.056/3W
R802
10K
ER39L
T1
Q904
4401
CR201
STPS10H100CFP
C907
0.1U
C905
0.01U
ZD900
20A
R922
40.2K
D904 BAS316
C626
220P/1KV
C625
220P/1KV
Q603
2SK3569
CR202STPS10L60CFP
C613
0.022u/630V
R605
200K/1W
C201
470u/35V
R201E
7.5k/1206
R201F
7.5k/1206
R201G
7.5k/1206
R201H
7.5k/1206
R201I
7.5k/1206
R201D
7.5k/1206
R201A
7.5k/1206
R201B
7.5k/1206
R201C
7.5k/1206
R202D
3.01K/1206
R203A
3.01K/1206
R203B
3.01K/1206
C204
1Ku/16V
L202
CB-3.0-01
R202A
3.01K/1206
R202B
3.01K/1206
R202C
3.01K/1206
R512
100
D608
BAS316
D607
BAS316
C906
100U/50V
ZD901
10D
1/2
3
4
PC902
PC123
R502
1K
C504
1Kp
IC501
APL431 2.5V
R504
2K
C506
1u
L201
CB-3.0-01
FB201
3.5X6
C206
0.1u
FB203
3.5X6
C205
220u/35V
FB202
3.5X6
R201J
7.5k/1206
R201K
7.5k/1206
C203
0.1u
R201L
7.5k/1206
C202
220u/35V
L204
CB-3.0-01
R204C
3.01K/1206
D202
SB560
D203
SB560
R204A
3.01K/1206
R204B
3.01K/1206
R205C
3.01K/1206
R205B
3.01K/1206
R205A
3.01K/1206
L203
CB-3.0-01
C208
470u/25V
C207
470u/25V
R205D
3.01K/1206
R204D
3.01K/1206
C210
0.1u
C211
0.1u
F201
T5A/125V
F200
T5A/125V
A1 A1
DISPLAY SUPPLY (37ā€ & 42ā€): PART 1
H_16750_068.eps
110108

Table of Contents

Related product manuals