EasyManua.ls Logo

Philips 39PFL3008/98 - Wiring diagram 39 3008 series

Philips 39PFL3008/98
66 pages
Print Icon
To Next Page IconTo Next Page
To Next Page IconTo Next Page
To Previous Page IconTo Previous Page
To Previous Page IconTo Previous Page
Loading...
EN 36TPS10.1A LA 9.
Block Diagrams
2013-Jul-05
back to
div.table
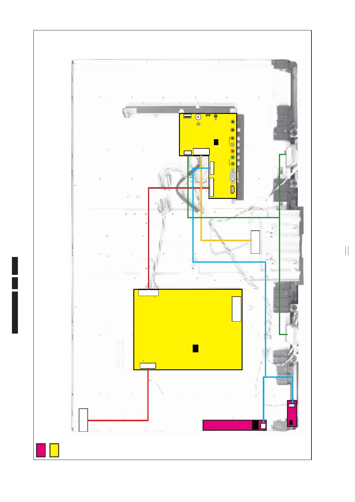
9.2 Wiring diagram 39" 3008 series
19450_401_130116.eps
130116
Board Level Repair See note in Chapter 6 about cable position numbers
Component Level Repair
Only for authorized workshops
WIRING DIAGRAM 39" (3008 series)
LOUDSPEAKER
LOUDSPEAKER
(1185)
(1185)
LOUDSPEAKER
(1185)
LOUDSPEAKER
LOUDSPEAKER
(1185)
(1185)
LOUDSPEAKER
(1185)
MAIN POWER SUPPLY
(1054)
A
CN901
L
N
IR/LED BOARD
(1056)
J
KEYBOARD CONTROL
(1057)
E
HDMI 2
4P
TV ANTENNA
USB
SERV.U
SSB
(1053)
B
HDMI1
VGA
AUDIO
PC IN
VEDIO OUT
Y/VIEDO
Pb
Pr
L
R
COMPONENT/VEDIO IN
12P
CN8901
to panel
CN9902
13P
12P
CN701
to panel
30P
CN403
CN601
CN016
3P
CN201
6P
10P
CN401

Related product manuals