EasyManua.ls Logo

Philips CD210 - Page 32

Philips CD210
68 pages
Print Icon
To Next Page IconTo Next Page
To Next Page IconTo Next Page
To Previous Page IconTo Previous Page
To Previous Page IconTo Previous Page
Loading...
c
240V
MAINS
MAINS
|
2cOV
l27V
|
1
QV
MAINS
POWER
SUPPLY
ace
se
ET
al
oe
|
|
i
|
1501
|
i
17-4
6
ol!
6511
3782
ies
C)
uv
iNaoge
“1
NaB02
3848
ue
Vi3
2703
6587
A
6580
=
au
iNao2
|
IN4G22
l
ov
:
~2
Vie
5880
a
=
a
o5y
LV
IN4002
|
IN4@02
|
3
:
2707
2709
2705
0
22n
W
6584
6582
=
22n
&
1
i
IN4oa2
|
IN4O02
l
Power
ON/OFF
6592
MC7SL@5
2
3
C)
©)
2711
rT
100
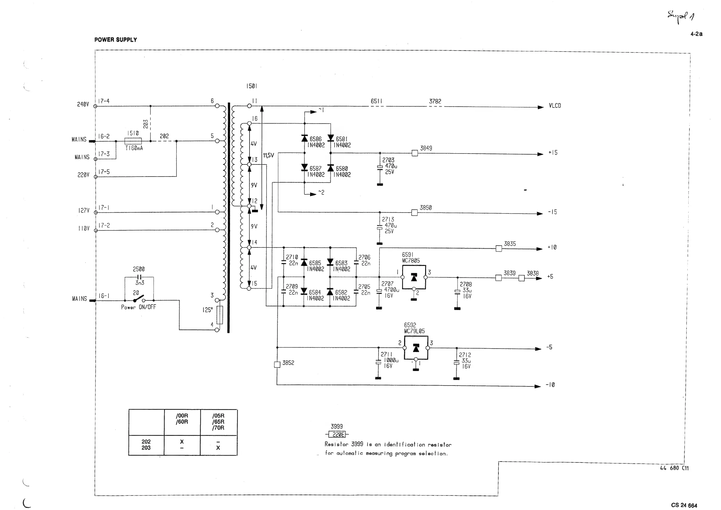
3999
2e0E
Resistor
3999
is
an
identification
resistor
for
automatic
measuring
program
selection,
erie
ide
3835
vid
+10
6591
=
|
2706
6585
Wess
=
22,
MC?805
3839
__
3838
5
44
680
C11
CS
24
664

Related product manuals