EasyManua.ls Logo

Philips CDR775 - Mechanical Instructions; Wiring Diagrams

Philips CDR775
73 pages
Print Icon
To Next Page IconTo Next Page
To Next Page IconTo Next Page
To Previous Page IconTo Previous Page
To Previous Page IconTo Previous Page
Loading...
Mechanical instructions
GB 19CDR775 4.
4. Mechanical instructions
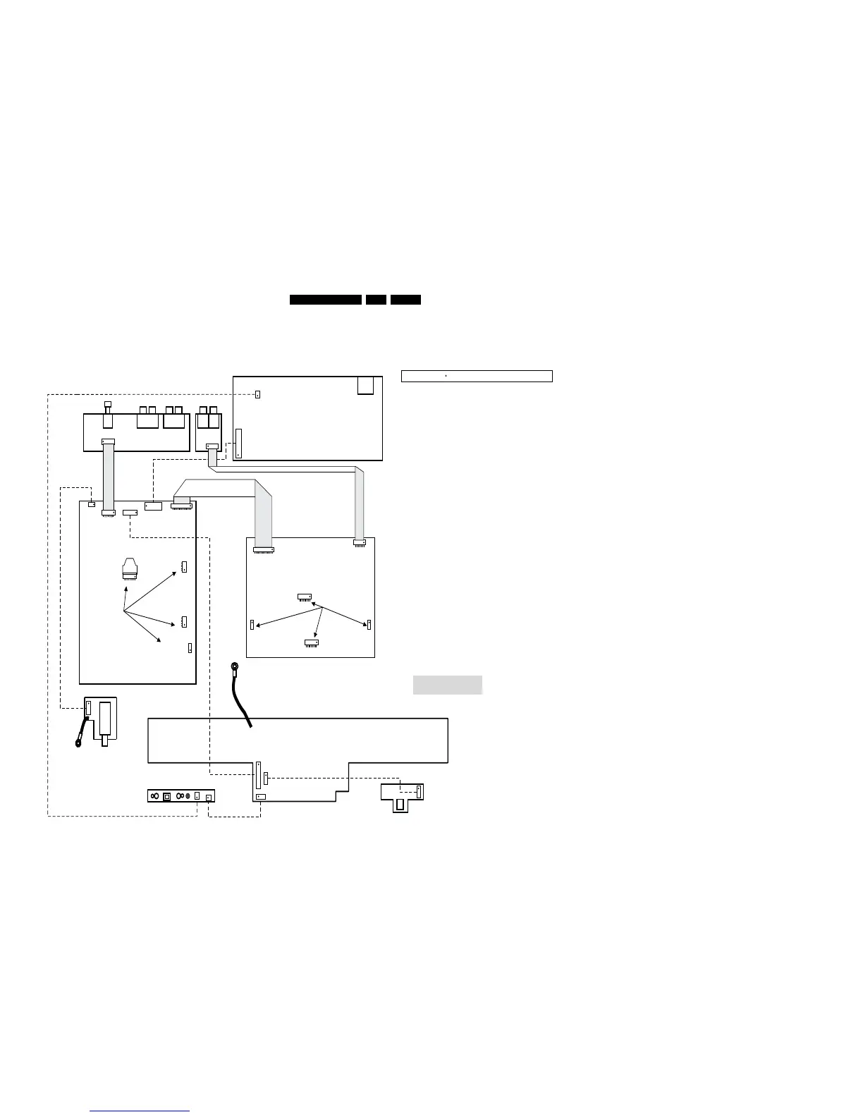
Wiring diagram
8002
3104 157 10962
8001
3104 157 1124
8006
3104 157 1099
Connections delivered
with CDR-loader assy
Cable connected
to tray switch and
tray motor
3104 128 0599
I/O BOARD
3104 128 0586
MAIN BOARD CDR
POWER SUPPLY UNIT
1400
114
1500
11
F934
110
0205
0206
1000
1220
1330
1200
1
10
1
11
Flex connected
to CDM
Flex connected
to sledge motor
Flex connected
to turn table motor
1
4
130
114
1
0101
1
11
ON/OFF & STBY LED
3104 128 0590
8002
1 VDC2
2VFTD
3
VDC1
4 GROUND
5+5V
6+5V
7 GROUND
8 GROUND
9 GROUND
10 +12V
11 -8V
8003 (at conn. F934
of CDR main board)
1 VDC2
2
VFTD
3 VDC1
4 SYS_RESET
5IIC_DATA
6 GROUND
7IIC_CLK
8 DISPL_INT
9 GROUND
10 D5V
8001 (at conn. 1400
of CDR main board)
1 GROUND
2 DIG_OUT_C
3 GROUND
4 EXT_DIG_IN
5 EXT_OPT_IN
6 GROUND
7D5V
8KILL
9LEFT_IN
10 GROUND
11 RIGHT_IN
12 RIGHT_OUT
13 GROUND
14 LEFT_OUT
8004
1 LEFT_HP_OUT
2 GROUND
3 RIGHT_HP_OUT
Pin 1 indicated by All Wires are 1/1, except flex 8001, 8005 and 8007
8006
1 ON!
2 OFF!
8008
1+5V
2
IR_IN
3 GROUND
8009
1LED_ON
2 GROUND
TO FRAME
3104 128 0590
DISPLAY BOARD
1410
13
1302
1300
TO FRAME
HEADPHONE BOARD
3104 128 0590
1000
3104 128 0590
CD OUT
1502
122
Texture indicates text on flex.
17
122
1006
111
17
1002
4
1
1001
1208
1209
1000
1
4
116
8004
3104 157 11002
8005
3104 157 1123
8007
3104 157 1129
3104 128 0598
MAIN BOARD CD
3104 128 0590
IR BOARD
1 GROUND
2 DSA_DATA_CD
3 GROUND
4 DSA_STR_CD
5 DSA_ACK_CD
6 GROUND
7 D5V
8 12V_CD
9 GROUND
10 IIS_DATA_CD
11 IIS_WS_CD
12 GROUND
13 IIS_BCLK_CD
14 GROUND
15 DOBM_CD
16 SYS-RESET
17 LEFT_IN_CD
18 GROUND
19 RIGHT_IN_CD
20 KILL
21 SYS_CLK_8W
22 GROUND
8005 (at conn. 1708
of CDR main board)
1 RIGHT_CD
2 GND
3 LEFT_CD
4 GND
5 DOBM_CD
6 GROUND
7 KILL
8007 (at conn. 1209
of CD main board)
8008
3104 157 11281
8009
3104 157 03881
1708
1400
1
3
1119
1121
1122
1
3
1200
1
10
1
1
2
3
12
1
2
8003
3104 157 1122
Flex connected
to CDM panel
Cable connected
to tray switch and
tray motor
Connections delivered
with CD-loader assy
Cable connected
to sledge motor
Flex connected
to turn table motor
1
2
WIRING DIAGRAM CDR775
CL 96532086_001.eps
080999

Table of Contents

Other manuals for Philips CDR775

Related product manuals