EasyManua.ls Logo

Philips FR980 - WIRING DIAGRAM

Philips FR980
63 pages
Print Icon
To Next Page IconTo Next Page
To Next Page IconTo Next Page
To Previous Page IconTo Previous Page
To Previous Page IconTo Previous Page
Loading...
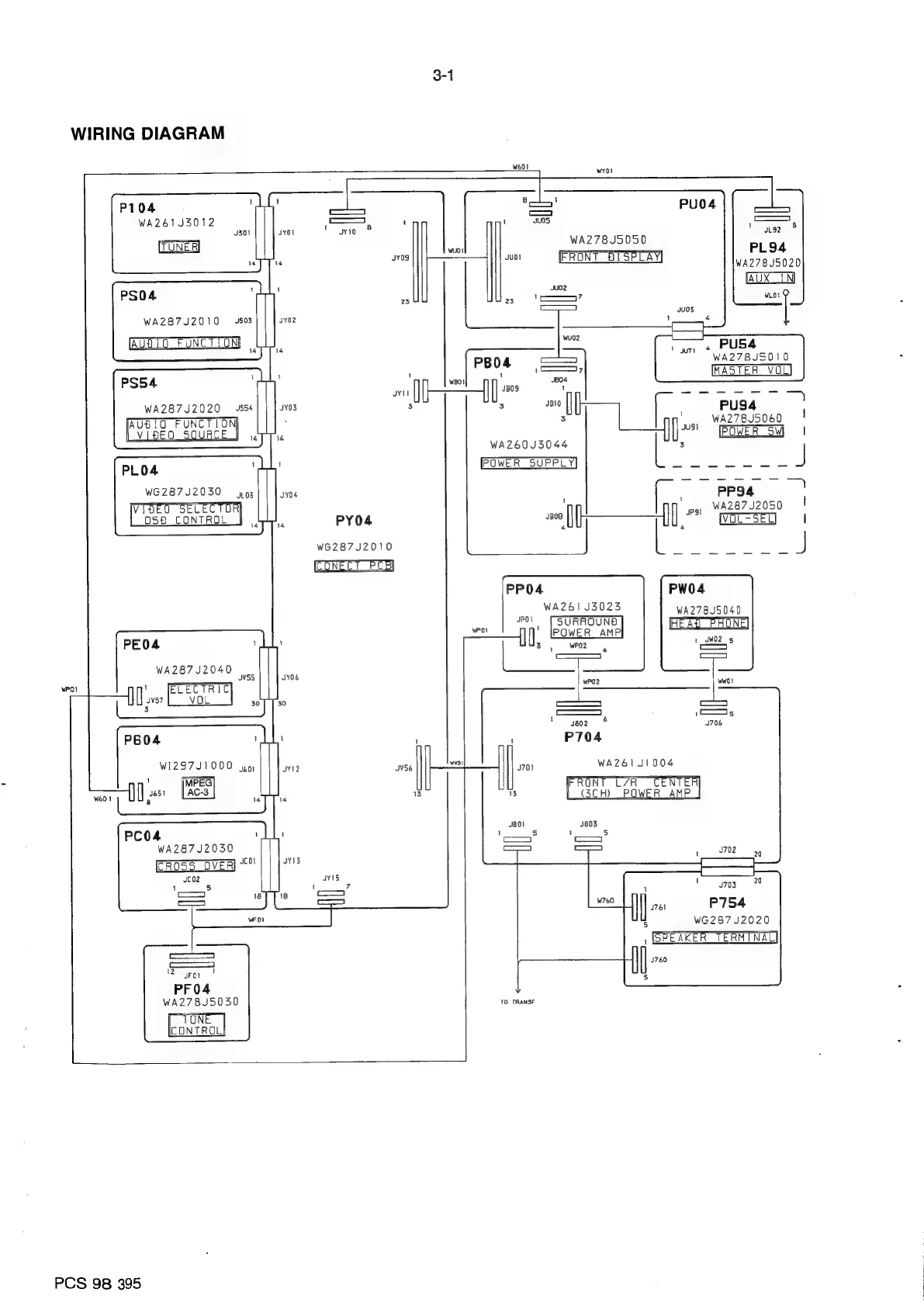
WIRING
DIAGRAM
P104
WA261J3012
PSO4
PS5S4
PLO4
PEO4
wPO)
P604
PC04
WG287J52030
[rToEO
SELECTOR
osp
CONTROL
WA287J2010
WA287J2020
es
FUNCTION
VIDEO
SOURCE
J
WA287J2040
|
WIZ97J1000
Joo,
!
MPEG
{|
Jé5!
AC-3
WA287J2030
fCR055
OVER]
~"
JC02
JFON
PFO4
JS03
JS54
JLO3
VSS
'
fECECTRIC
1
3
WA278J5030
|
Saal
CONTROLS
JYO!
JYO2
JYO3
SYO4
14
J¥06
50
PY04
WG287J2010
=
:
wviao
8
Jyog
23
wuUol
fay
Ss
Hl
PCS
98
395
waol
|
1
JU0S
WA278J5050
Juol
Ju02
7
wUu02
7
JBO9
5
sao
||
!
3
WA260J35044
POWER
SUPPLY
PPO4
WA261
53023
JPOs
|
3,
WP02
wPO2
1
aoz°
1
P704
(3CH)
,
|
aus
,
[SURROUND
(J,
Power
ane
6
WA261
51004
ONT
L/R
POWER
AMP
——
‘ys
°
PL94
WA278J5020
[AUXIN
=|
,
PUS4
WA278J5010
MASTER
VOL
PUS4
WA278J5060
[POWER
Sw
ee
PP9A
WA287
J2050
|
ol
(WOL=SEL
PW04
WA278.J5040
READ
PHONE]
1
JWO2
5
SS.
NTER
TO
TRANSF
1
WG287
42020
,
SPEAKER
TERMINAL]
|
J760
5

Other manuals for Philips FR980

Related product manuals