EasyManua.ls Logo

Philips ITS4843B - Page 39

Philips ITS4843B
78 pages
Print Icon
To Next Page IconTo Next Page
To Next Page IconTo Next Page
To Previous Page IconTo Previous Page
To Previous Page IconTo Previous Page
Loading...
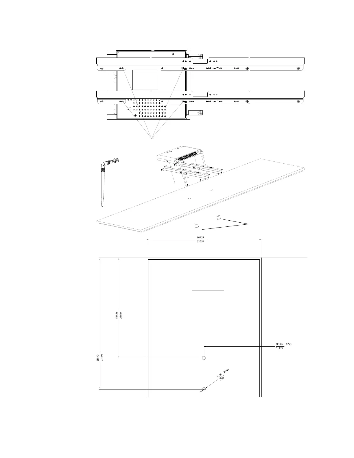
Mounting the IntelliVue Smart-hopping Core AP Above a Ceiling Tile
IntelliVue Smart-hopping 1.4 GHz Access Point Installation Guide 2-13
Figure 2-8: Possible Above the Ceiling Core AP Mounting Position
Use These Holes Marked AM2
Grommets
Bend Down
Tighten Collar
Units: millimeters
inches

Table of Contents