EasyManua.ls Logo

Polaris 340 CLASSIC 2006

Polaris 340 CLASSIC 2006
300 pages
To Previous Page IconTo Previous Page
To Previous Page IconTo Previous Page
Loading...
14.12
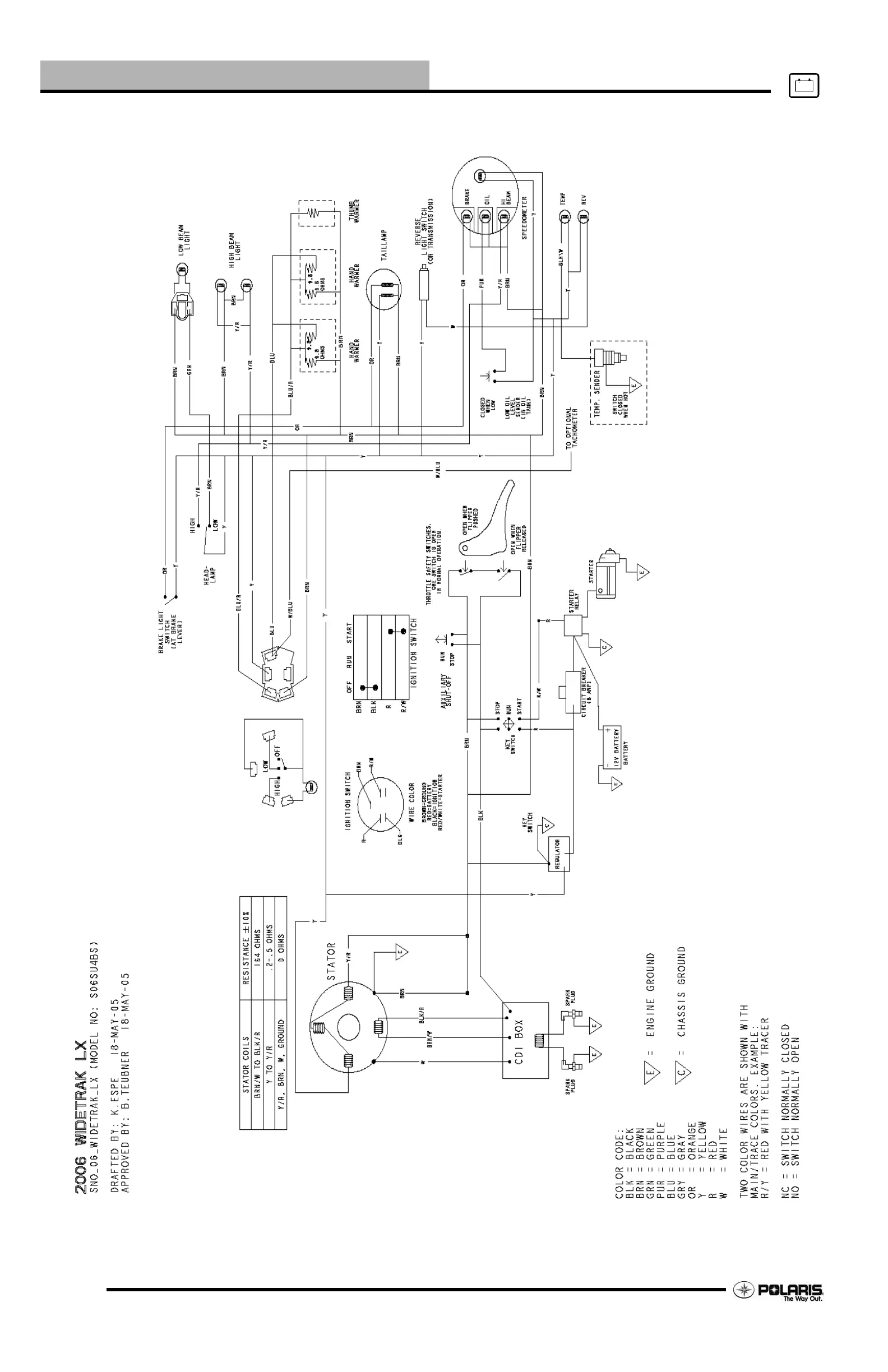
WIRE DIAGRAM
WIDETRAK ENGINE/CHASSIS

Table of Contents

Related product manuals