EasyManua.ls Logo

Potterton Paramount 60 - Paramount 40 General Data and Dimensions

Potterton Paramount 60
50 pages
Print Icon
To Next Page IconTo Next Page
To Next Page IconTo Next Page
To Previous Page IconTo Previous Page
To Previous Page IconTo Previous Page
Loading...
POTTERTON COMMERCIAL PRODUCTS DIVISION
INSTALLATION, OPERATION AND MAINTENANCE MANUAL
SECTION 1
PARAMOUNT
PAGE 1
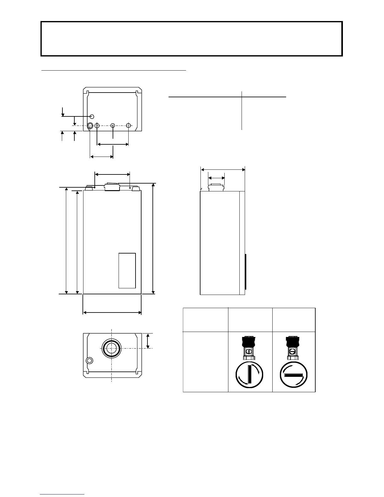
Fig 1 General Data and Dimensions Paramount 40
288
913
852
480
883
130
Ø125
407
Model
Paramount
HF Flow 1”
HR Return 1”
Gas Gas Connection ¾”
SIV Safety Valve ¾”
KA Condensate Drain Ø25 mm
Gas
HR
50
260
192
SIV
KA
116
A
A
Z
Z
A
A
Z
Z
Non Return valve
Paramount 40
only
NRV inoperative
Flow in any
direction
NRV operative
Flow to boiler
only
A
A
Z
Z
A
A
Z
Z

Related product manuals