EasyManua.ls Logo

Primus C 6 - Replacement of Door Rubber; Adjusting of Vibration Switch

Primus C 6
20 pages
Print Icon
To Next Page IconTo Next Page
To Next Page IconTo Next Page
To Previous Page IconTo Previous Page
To Previous Page IconTo Previous Page
Loading...
516574 PUBLICATION DATE Jan 06 INSTALLATION AND MAINTENANCE MANUAL 13
REPLACEMENT OF DOOR RUBBER
1. Open the door. Remove the door glass (fig.5.2., pos.5) with rubber (4) from the stainless steel door (7) by
pushing it towards the drum. Do it carefully, not to damage the glass. Remove the seal (4) from the glass.
2. Place a new rubber seal with wider groove on the glass with the edge up.
3. Moisten the seal groove (4) for door with soap water. Place a smooth cord in the groove all around.
Tighten up the margin by cord and fit the unit to the door opening (7) (with the clip up). Hold one end of
the cord firmly on the door. Pull the other cord end towards the center of the glass for the rubber edge
properly fit in.
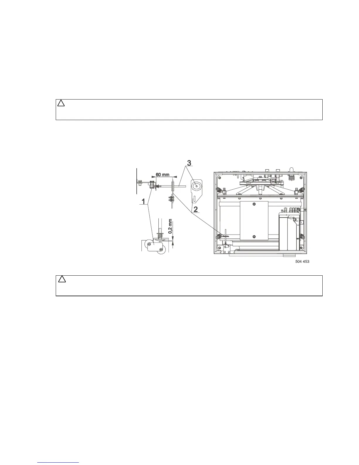
ADJUSTING OF VIBRATION SWITCH
WARNING !
MAKE SURE THE MACHINE IS DISCONNECTED FROM POWER SUPPLY BY PULLING OUT THE
PLUG !
1. Dismantle the top cover by two bolts on machine rear.
2. Check the distance between microswitch (1) and the sensor mechanical stop (3).
3. Check the position and condition of the sensor (fig.5.2.,pos.3) of vibration switch in the limiter (2).
It must be exactly in the center of the hole !
4. Check the distance between vibration switch (1) and limiter (2).
5. Mount the machine cover back.
1. Microswitch
2. Limiter
3. Sensor
Fig.5.2.B Vibration switch
REPLACEMENT / REGULATION OF THE BELT
WARNING !
MAKE SURE THE MACHINE IS DISCONNECTED FROM POWER SUPPLY BY PULLING OUT THE
PLUG FROM THE SOCKET.
1. Dismantle the rear cover. Before complete removal of the rear panel it is necessary to disconnect the ventilation
hose of the machine. It means loosen the hose clip and pull the rubber hose off the plastic socket.
2. Take off the belt (fig. 5.2.C, pos. 5.) by pulling the belt and turning the drum pulley (6).
3. Put a new belt (5) of identical type on pulleys (3 and 6). The re-assembly of the belts is done in the reverse
order as the disassembly.
4. The belt must be placed in the correct motor pulley trenches in such way the belt is running in the center
of the drum pulley.
5. Loosen the bolt (1) for securing the motor position. Lift or push down the motor for regulating the belt
tension.
6. The testing force of belt tensioning is 180N which can be measured by tension meter.
Procedure for APPROXIMATE belt tensioning with belt deflection 20 mm: apply a load of 6 kg to the middle
of the belt, fig. 5.2.C. „F“.
7. When installing the rear cover again, don´t forget to put the rubber hose back on the plastic socket and secure
it with the hose clip.
!
!

Related product manuals