EasyManua.ls Logo

Prismafood BASIC 4 - Wiring Diagrams

Prismafood BASIC 4
25 pages
Print Icon
To Next Page IconTo Next Page
To Next Page IconTo Next Page
To Previous Page IconTo Previous Page
To Previous Page IconTo Previous Page
Loading...
19
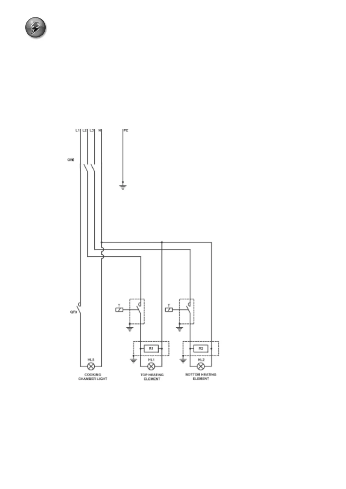
9 ELECTRIC EQUIPMENT
MOD. BASIC 4-44
MOD. BASIC XL 4-44
400 V (for one chamber)

Related product manuals