EasyManua.ls Logo

Protherm Leopard 24 BOV - Page 32

Protherm Leopard 24 BOV
34 pages
Print Icon
To Next Page IconTo Next Page
To Next Page IconTo Next Page
To Previous Page IconTo Previous Page
To Previous Page IconTo Previous Page
Loading...
31
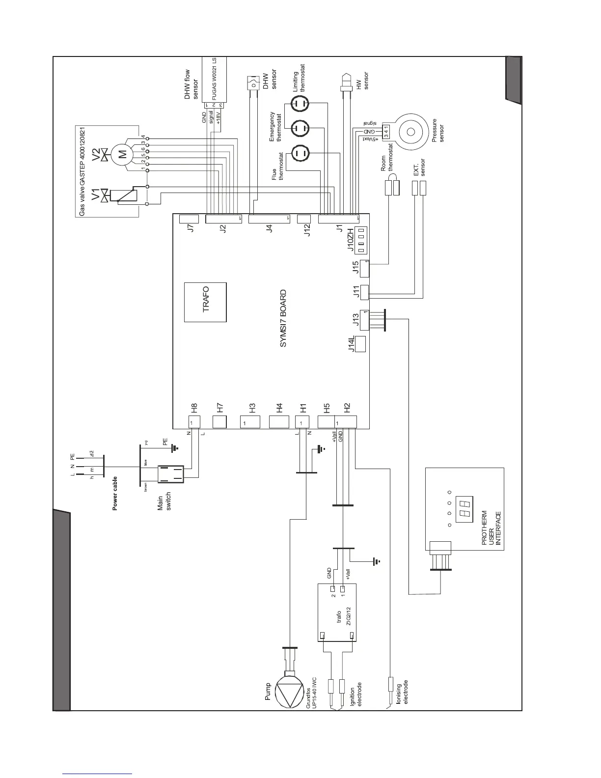
24 BOV - Electrical diagram
g. 24

Related product manuals